تفاصيل العمل

عملت على تصميم فيلا يابانية، حيث شملت مسؤولياتي ما يلي:

- إعداد الواجهات والمخططات التفصيلية – قمت بتطوير بعض المخططات المعمارية المرسله من قبل المهندس وعمل جميع الواجهات الخارجية، مع التأكد من أن التصميم يعكس الطراز المعماري المتبع في المنطقه لدمج الطراز التقليدي مع لمسات حديثة.

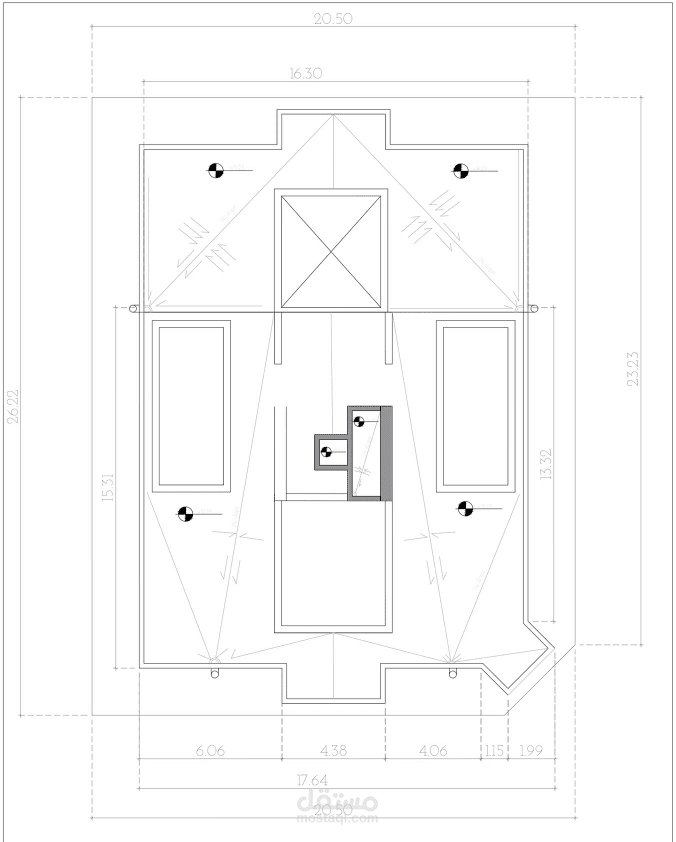
- عمل جميع مخططات التنفيذيه الخاصه بال الاضاءه و الصرف و التغذيه و التدفئه و العزل و التكيفات و الكهرباء (السوكيت و السوتشات).

- المقاطع – قمت بإنتاج رسومات مقاطع لتوضيح التنظيم المكاني للفيلا وهيكلها وتدفق المساحات بوضوح.

- تفاصيل النوافذ والأبواب – صممت تفاصيل النوافذ والأبواب مع التركيز على كل من الوظائف والجاذبية الجمالية، بما يتماشى مع الطراز العام للفيلا.

- تحليل الضوء الداخلي – أجريت تحليلًا للضوء الداخلي باستخدام أداة VELUX Daylight Visualizer 3، لضمان توزيع الضوء الطبيعي بشكل مثالي وكفاءة الطاقة في مساحات الفيلا.

- الصور ثلاثية الأبعاد – أنشأت صورثلاثية الأبعاد عالية الجودة للفيلا، مما يوفر رؤية شاملة للتصميم وكيفية تجربة المساحة في الحياة الواقعية.

يتطلب هذا المشروع فهماً عميقاً لعناصر التصميم الثقافية، واستخداماً فعالاً للمساحة، وتحسين توزيع الضوء الطبيعي، مع دمج الجماليات والدقة الفنية.

بطاقة العمل