الرئيسية
المستقلين
صبحية ا.
معرض الأعمال
اطلب عمل مماثل
مخططات تنفيذية
تفاصيل العمل
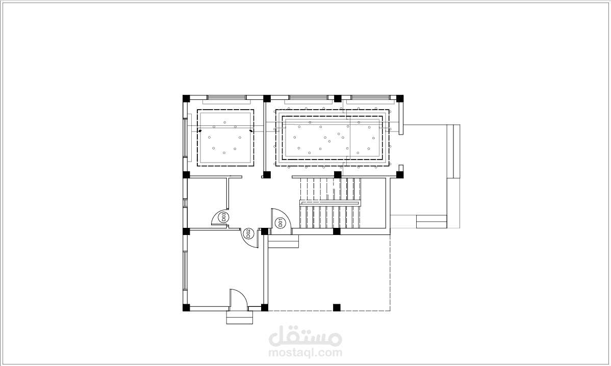
مخططات تنفيذية لشقة سكنية شاملة كل التفاصيل من حيث بدءا من الاعمدة حتى فنش البلاط
بطاقة العمل
اسم المستقل
صبحية ا.
عدد الإعجابات
0
عدد المشاهدات
20
تاريخ الإضافة
17/01/2025
تاريخ الإنجاز
27/11/2024
المهارات
الهندسة
رسم الخرائط
تصميم ديكور
تصميم هندسي
تصميم مخططات معمارية
×