تصميم مجمع تجاري للمشاريع الناشئة

تفاصيل العمل

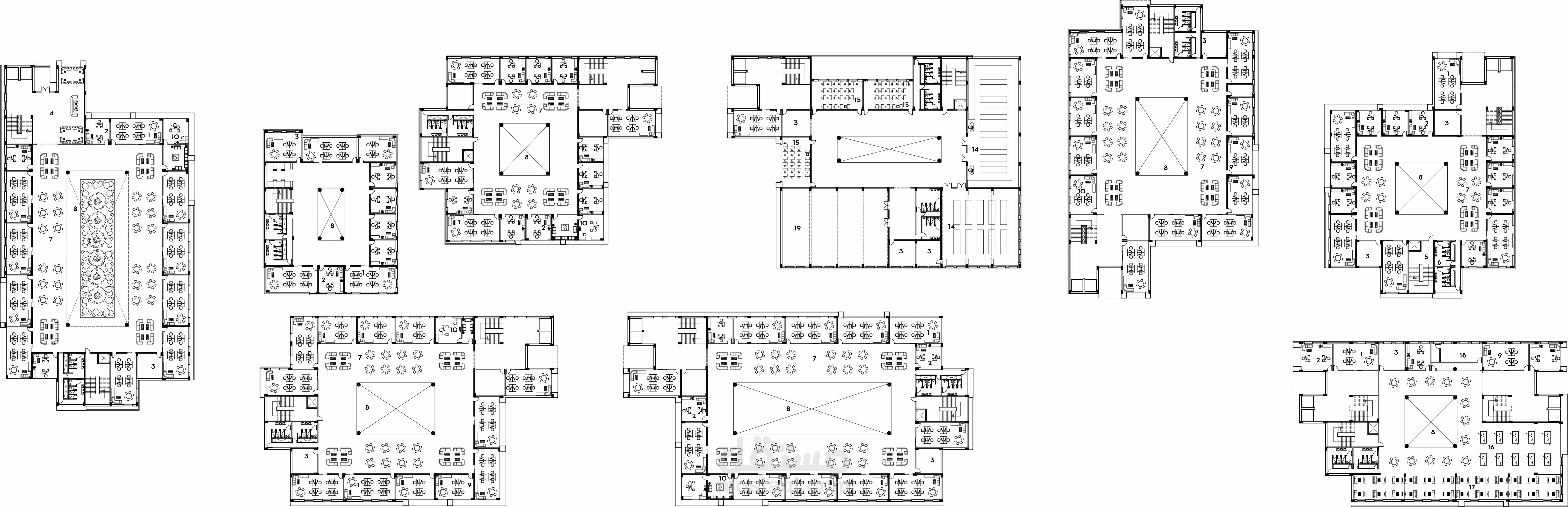
المشروع عبارة تصميم مجع تجاري للشركات الناشئة

الموقع: مدينة اسوان الجديدة-اسوان-مصر

يحتوي المشروع على كل المتطلبات من مكاتب ادارية وقاعة محاضرات وفصول ومعارض

واماكن لاستراحة العاملين في غير مواعيد العمل من مطاعم وجزء خاص بالعاب الفيديو

يحتوي المشروع علي برج اداري

بطاقة العمل

اسم المستقل
عدد الإعجابات
2
عدد المشاهدات
29
تاريخ الإضافة
تاريخ الإنجاز
المهارات