تفاصيل العمل

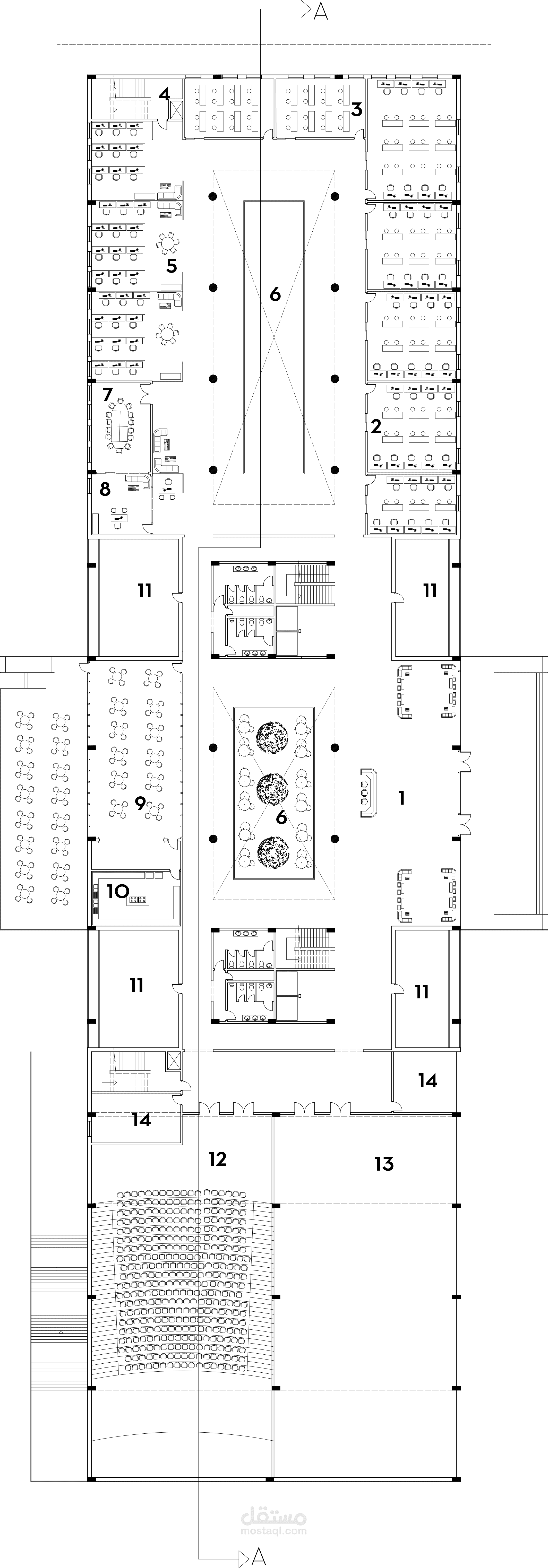
المشروع عبارة عن مركز أبحاث وإبتكار للطاقة المتجددة بمدينة أسوان في مصر ، ويهدف المشروع إلى توفير كافة المساحات الوظيفية المطلوبة للباحثين والعاملين بالمركز، بالإضافة إلى تحقيق المظهر الجمالي للمبنى واختيار الأنظمة الانشائية المناسبة

بطاقة العمل

اسم المستقل
عدد الإعجابات
1
عدد المشاهدات
35
تاريخ الإضافة
تاريخ الإنجاز
المهارات