تفاصيل العمل

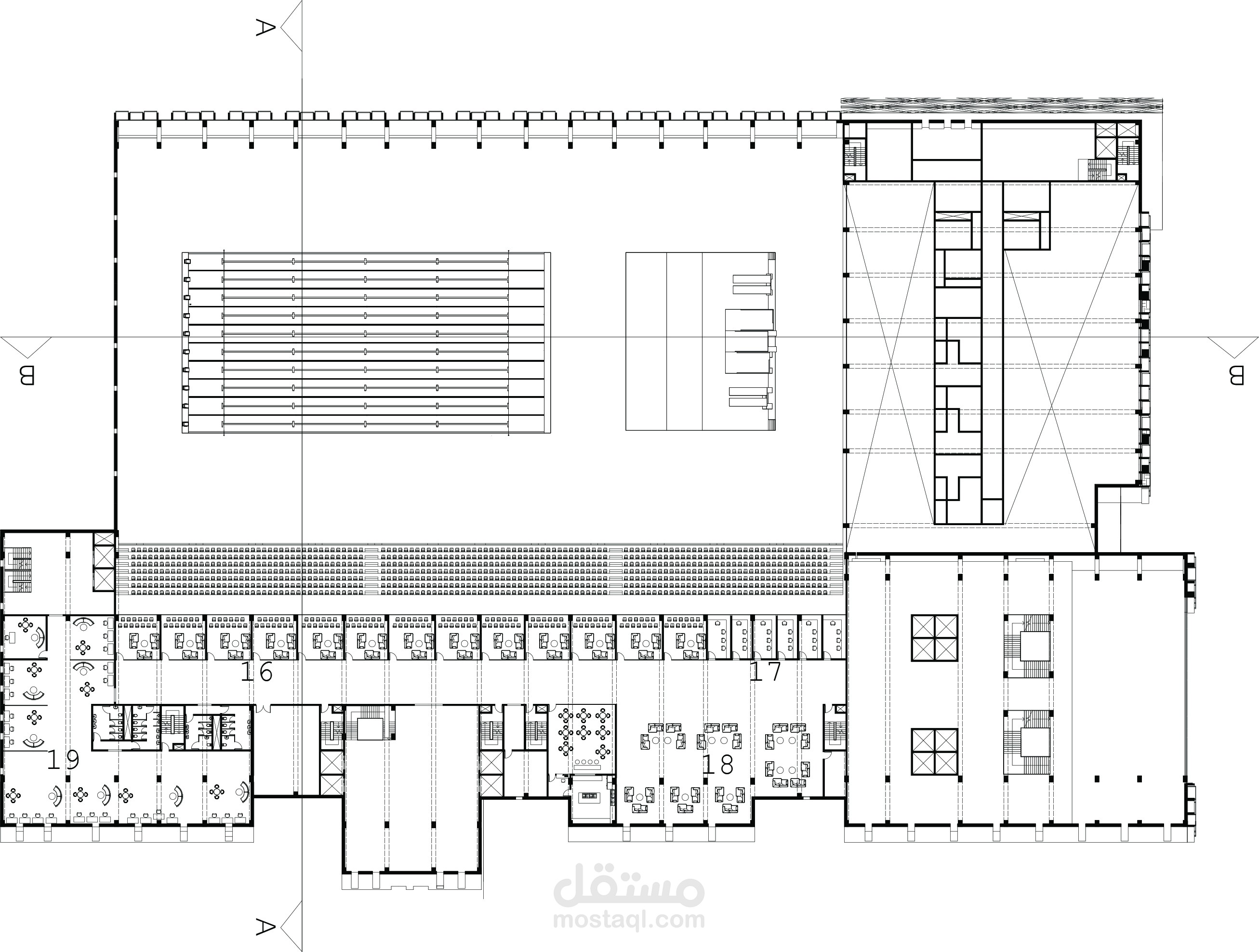
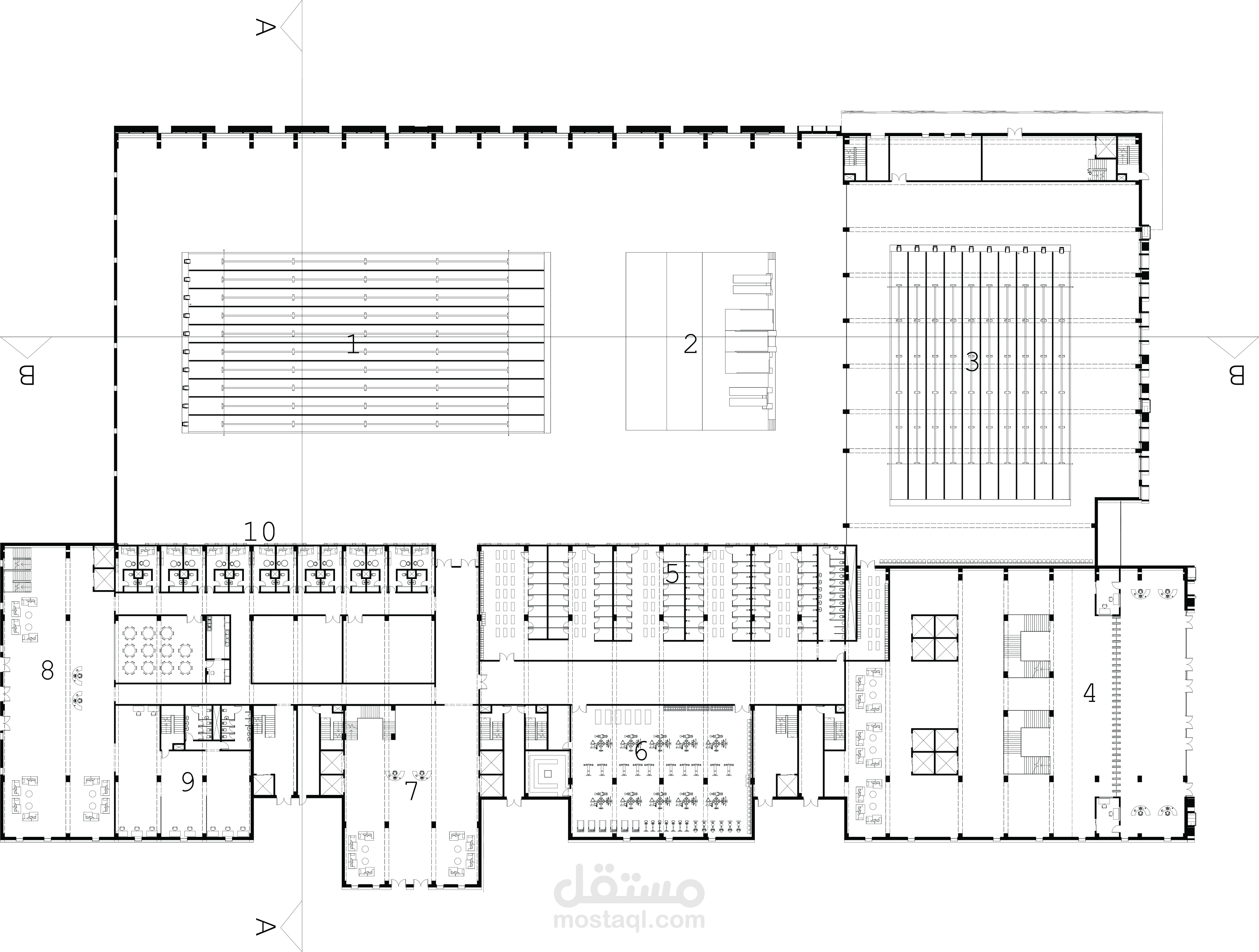
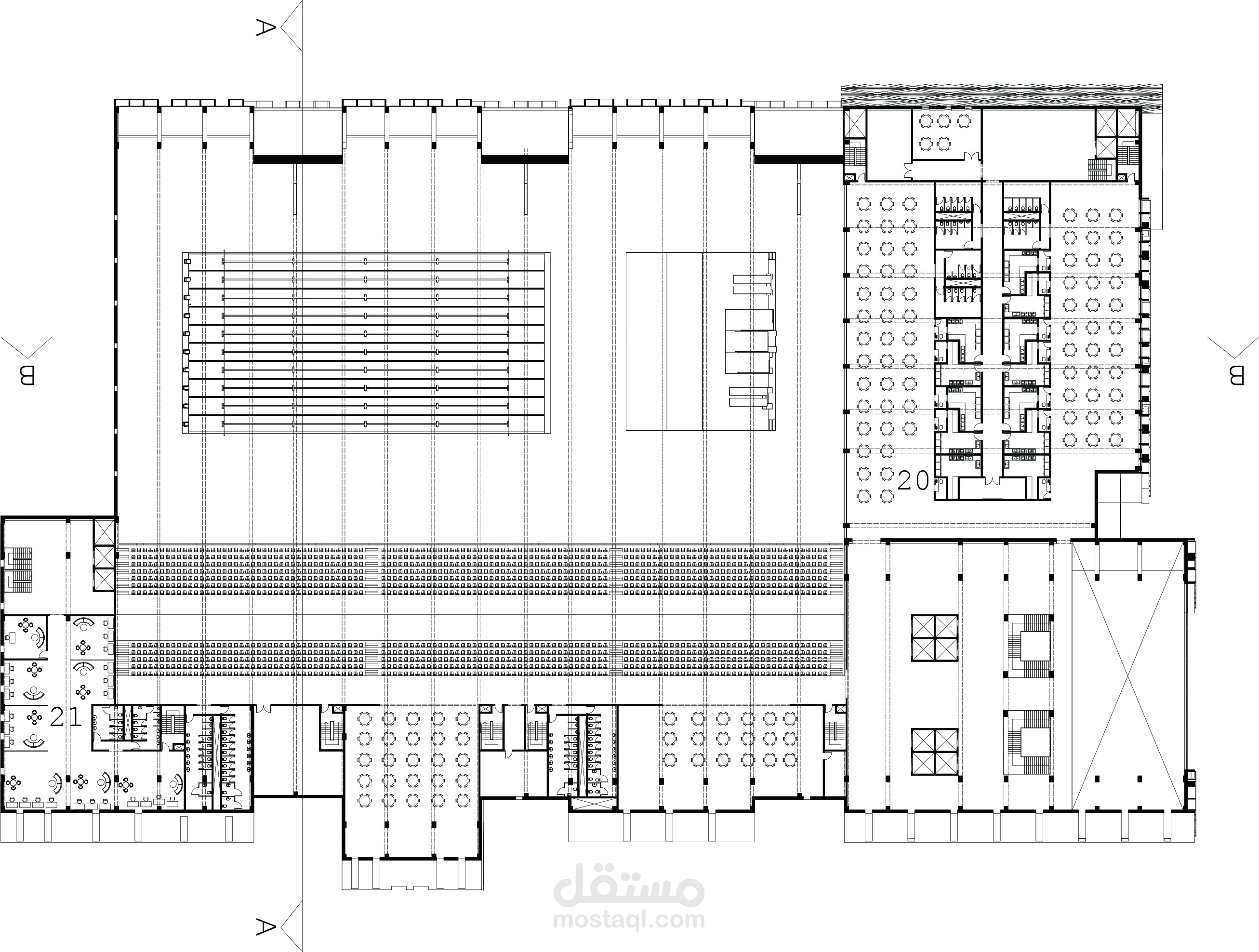
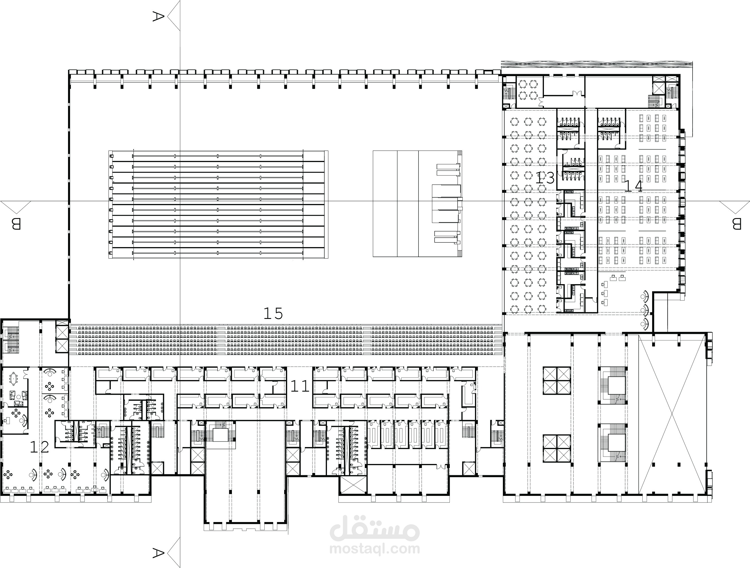
المشروع عبارة عن مركز رياضي مائي أوليمبي في مدينة اسوان الجديدة بمصر

يستهدف الشباب والاطفال ويشجعهم على ممارسة الرياضة وعدم اهمالها

ملفات مرفقة

بطاقة العمل

اسم المستقل
عدد الإعجابات
1
عدد المشاهدات
22
تاريخ الإضافة
تاريخ الإنجاز
المهارات