تفاصيل العمل

تصميم مبنى R+1 (15.50 م × 52.95 م) في 2D:

مخطط الموقع

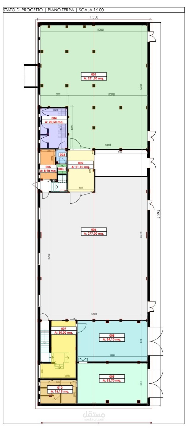
مخطط الطابق الأرضي (RDC)

مخطط الطابق العلوي (+1)

حساب مفصل لمساحات الغرف

الأبعاد الدقيقة وتوزيع المساحات الأمثل

العناصر المعمارية (الجدران الحاملة، الفتحات)

جدول حساب المساحات

الامتثال لمعايير البناء والسلامة

بطاقة العمل

اسم المستقل
عدد الإعجابات
0
عدد المشاهدات
22
تاريخ الإضافة
المهارات