تفاصيل العمل

ي هذا المشروع تم عمل الآتي :

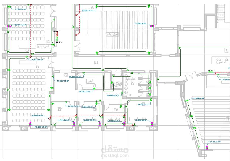
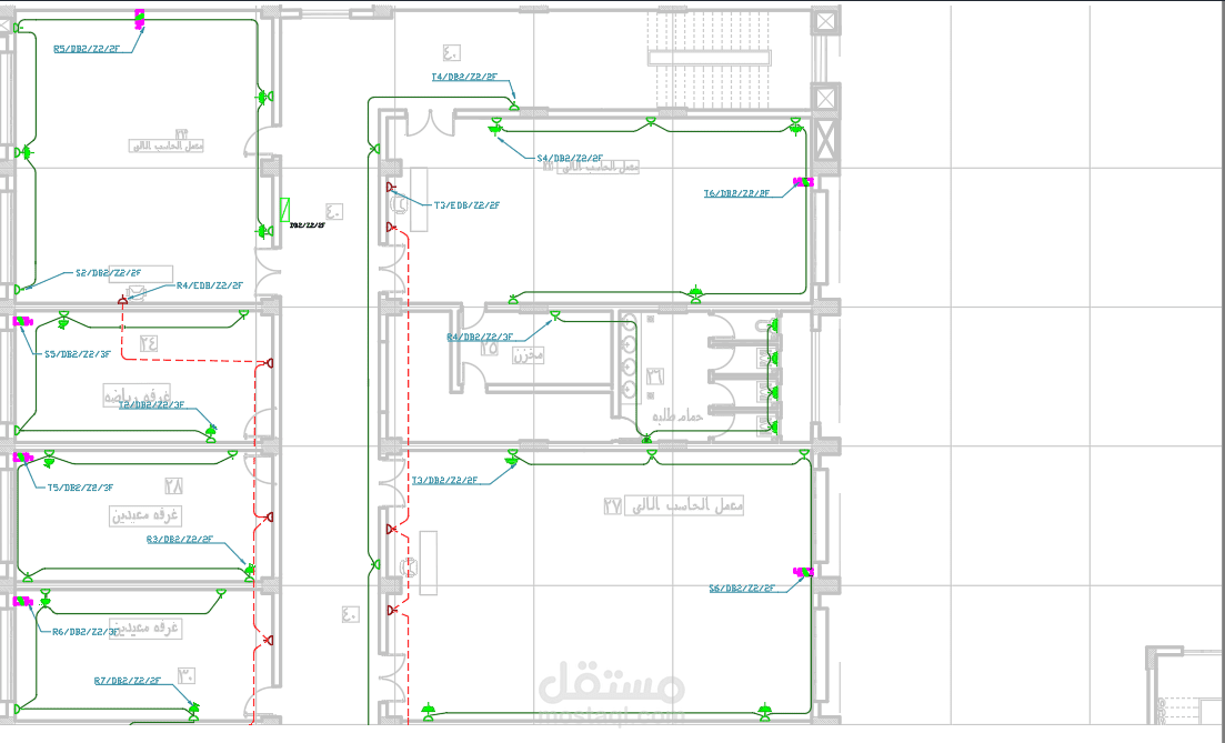
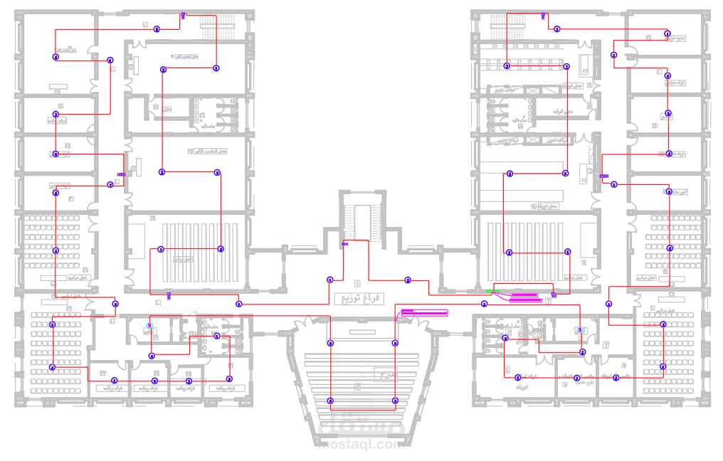
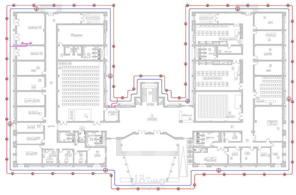
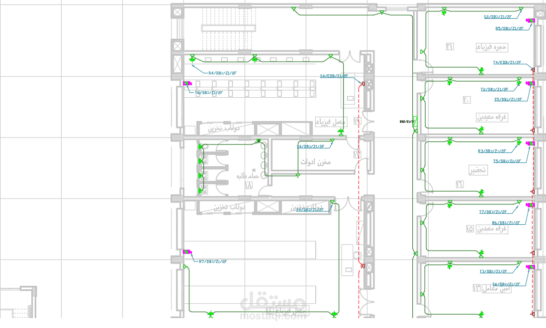
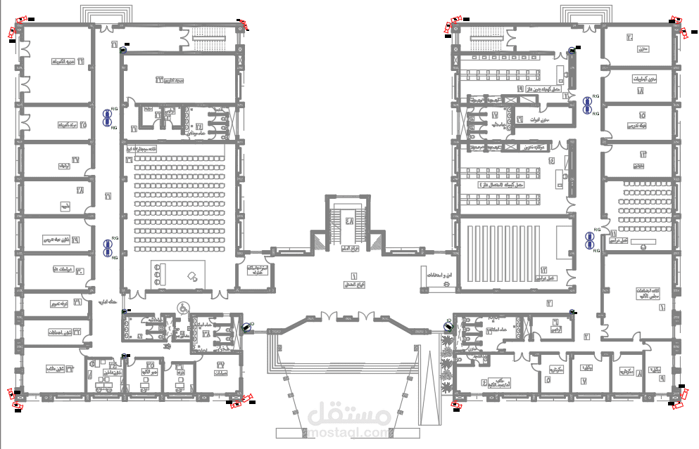
إجمالا: تم عمل الرسومات تصميمية ( Design Drawing) لكل الأنظمة الكهربية والتيار الخفيف ... بالإضافة إلي جدول الأحمال وجدوال الحصر وكل المخرجات الآخري..

حيث تم عمل الاتي الانظمة الأتية :

Lighting system

Power system

Lightning System

Earthing System

Cable Sizing

Panal schedule

SLD

FIRE ALARM

SOUND SYSTEM

Access Control System

CCTV System

DATA , TEL Systeme

بطاقة العمل

اسم المستقل
عدد الإعجابات
0
عدد المشاهدات
31
تاريخ الإضافة
تاريخ الإنجاز
المهارات