تفاصيل العمل

في هذا المشروع تم عمل الآتي :

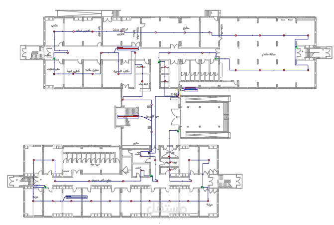
إجمالا: تم عمل الرسومات تصميمية ( Design Drawing) لكل الأنظمة الكهربية والتيار الخفيف ... بالإضافة إلي جدول الأحمال وجدوال الحصر وكل المخرجات الآخري..

حيث تم عمل الاتي الانظمة الأتية :

Lighting system

Power system

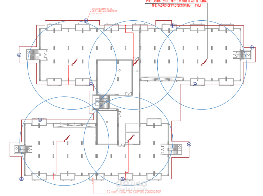
Lightning System

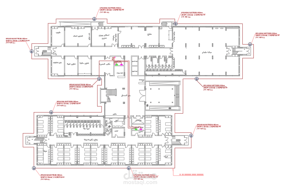
Earthing System

Cable Sizing

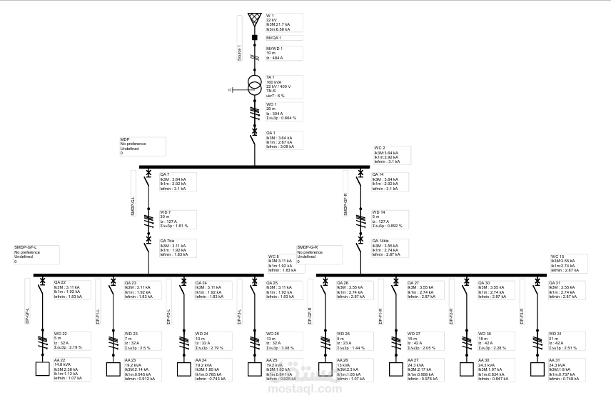
Panal schedule

SLD

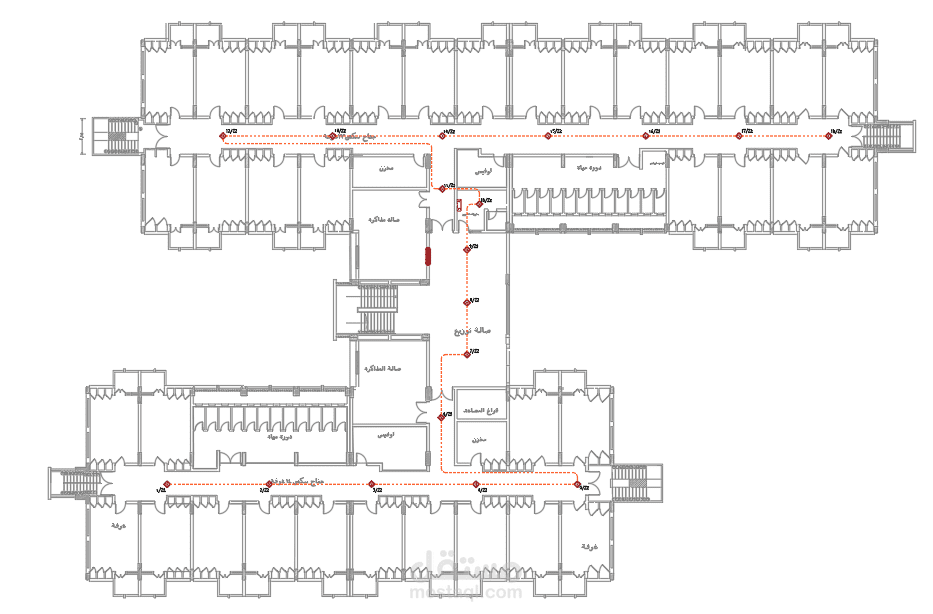
FIRE ALARM

SOUND SYSTEM

Access Control System

CCTV System

DATA , TEL Systemes

بطاقة العمل

اسم المستقل
عدد الإعجابات
0
عدد المشاهدات
39
تاريخ الإضافة
تاريخ الإنجاز
المهارات