دراسة إنشائيّة ومخططات شوب دروينج لمبنى قاعات مؤتمرات

تفاصيل العمل

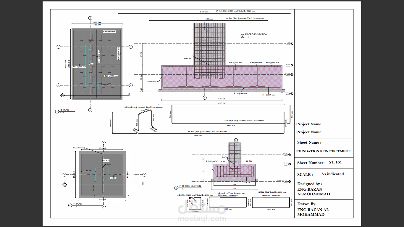
هذا المبنى يُعتبر غير منتظم , من ناحية الأسقف المائلة ( باعتبارها قاعات مؤتمرات), ومن ناحية طبوغرافية الأرض الغير مستوية , حيث أنها متدرجة بالارتفاع ,كما تم اعتماد بأن تكون الأساسات على عمق تأسيس موحّد( باعتبار ان فرق الارتفاعات ليس بالكبير بحيث يتم استغلاله بكراج او ماشابه) والدراسة وفق برنامج ال SAFE , اما الدراسة الزلزالية فقد تمت باستخدام برنامج ETABS .

حيث يحوي المبنى بلاطات مصمتة وبلاطات معصبّة باتجاهين, وأعمدة وكمرات وجدران مسلحة لبيت الدرج, وأساسات منفردة و حصائر جزئية للأعمدة مع جدار قص , كما أن النظام المقاوم للزلازل بالاتجاه X هو إطارات عزمية متوسطة(Intermediate Moment Resisting Frame) IMRF, أما بالاتجاه Y فالنظام المقاوم للزلازل هو جدران قصيّة.

جميع التفاصيل موضّحة في المخططات بالتفصيل.

والإخراج الاحترافي للمخططات الإنشائيّة التنفيذية(شوب دروينج) تم باستخدام برنامج ال REVIT.

بطاقة العمل

اسم المستقل
عدد الإعجابات
0
عدد المشاهدات
46
تاريخ الإضافة
تاريخ الإنجاز
المهارات