تفاصيل العمل

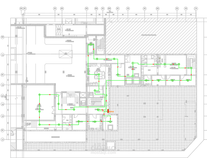
I'm excited to share my latest project on Electrical Design Track for an administrative building , where I contributed to the following phases:

1. Load Estimation

2. Lighting System

3. Small Power System

4. Panel Schedules

5. Cable Routing

6. Single Line Diagrams

7. Riser Diagram

8. Calculations (V.D & S.C)

9. Feeder Schedule

10. Ecodial

11. Generator Sizing

12. Power Factor Correction

بطاقة العمل

اسم المستقل
عدد الإعجابات
0
عدد المشاهدات
33
تاريخ الإضافة