الرئيسية
المستقلين
ساره ا.
معرض الأعمال
اطلب عمل مماثل
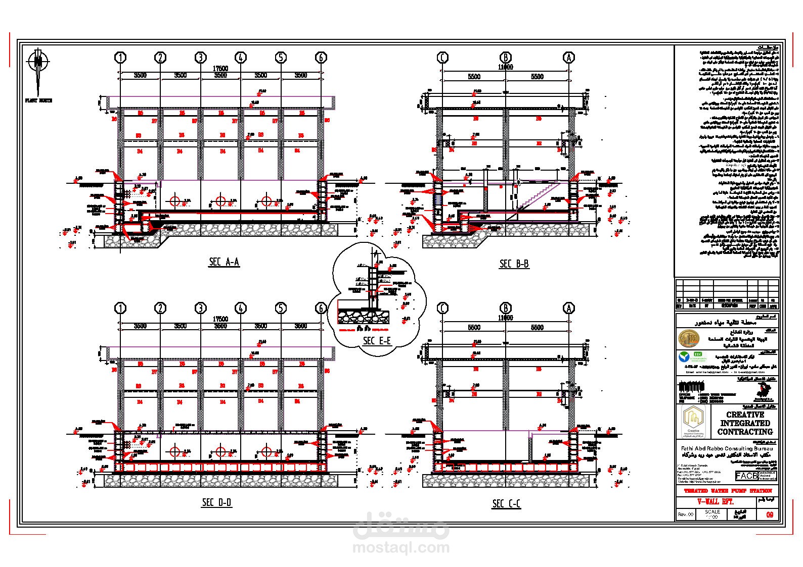
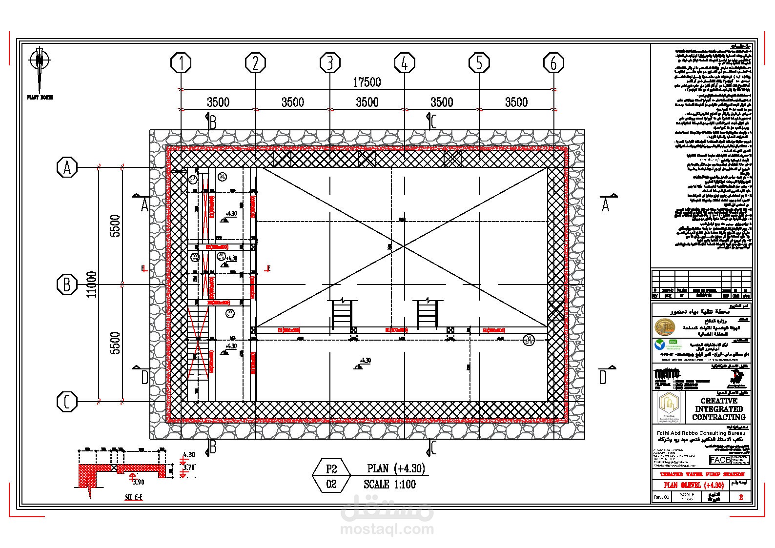
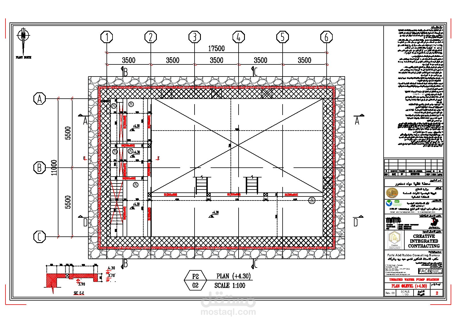
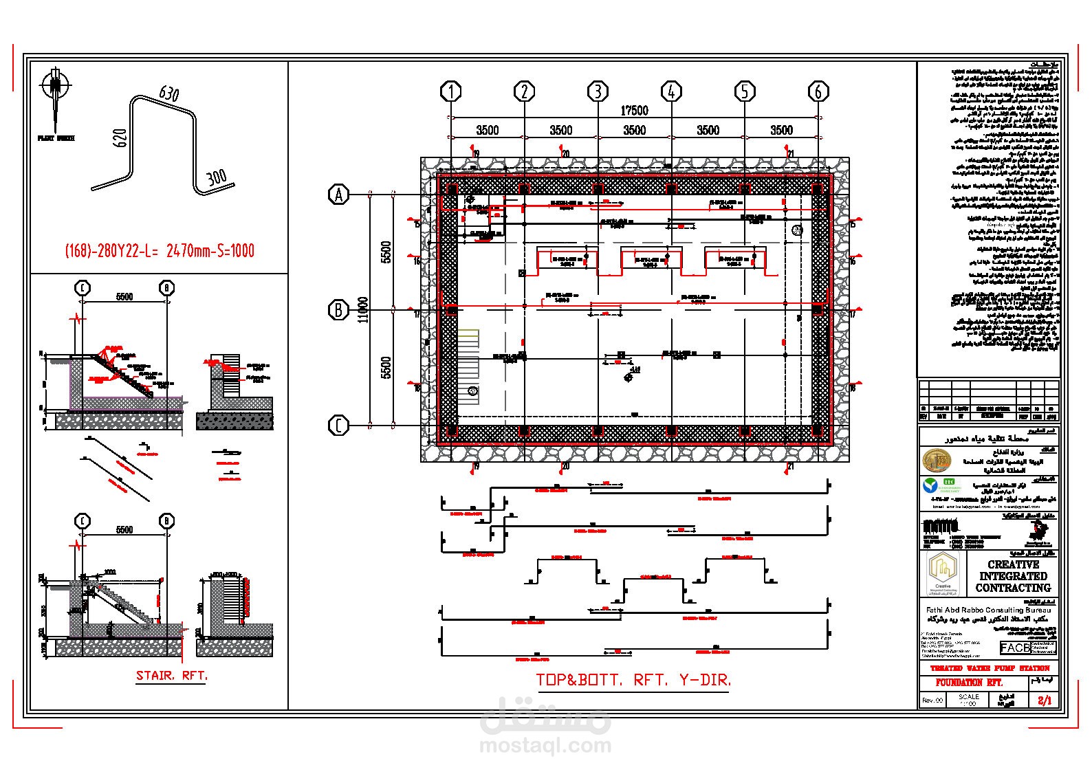
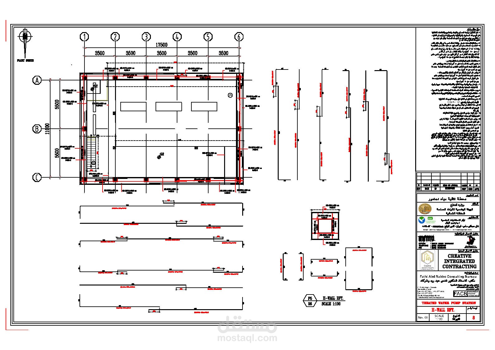
TREATED WATER PUMP STATION
تفاصيل العمل
مبني التنقيه وهو المرحله القبل الاخير لتنقيه المياه قبل الخروج للشبكه
بطاقة العمل
اسم المستقل
ساره ا.
عدد الإعجابات
0
عدد المشاهدات
11
تاريخ الإضافة
08/07/2024
×