تفاصيل العمل

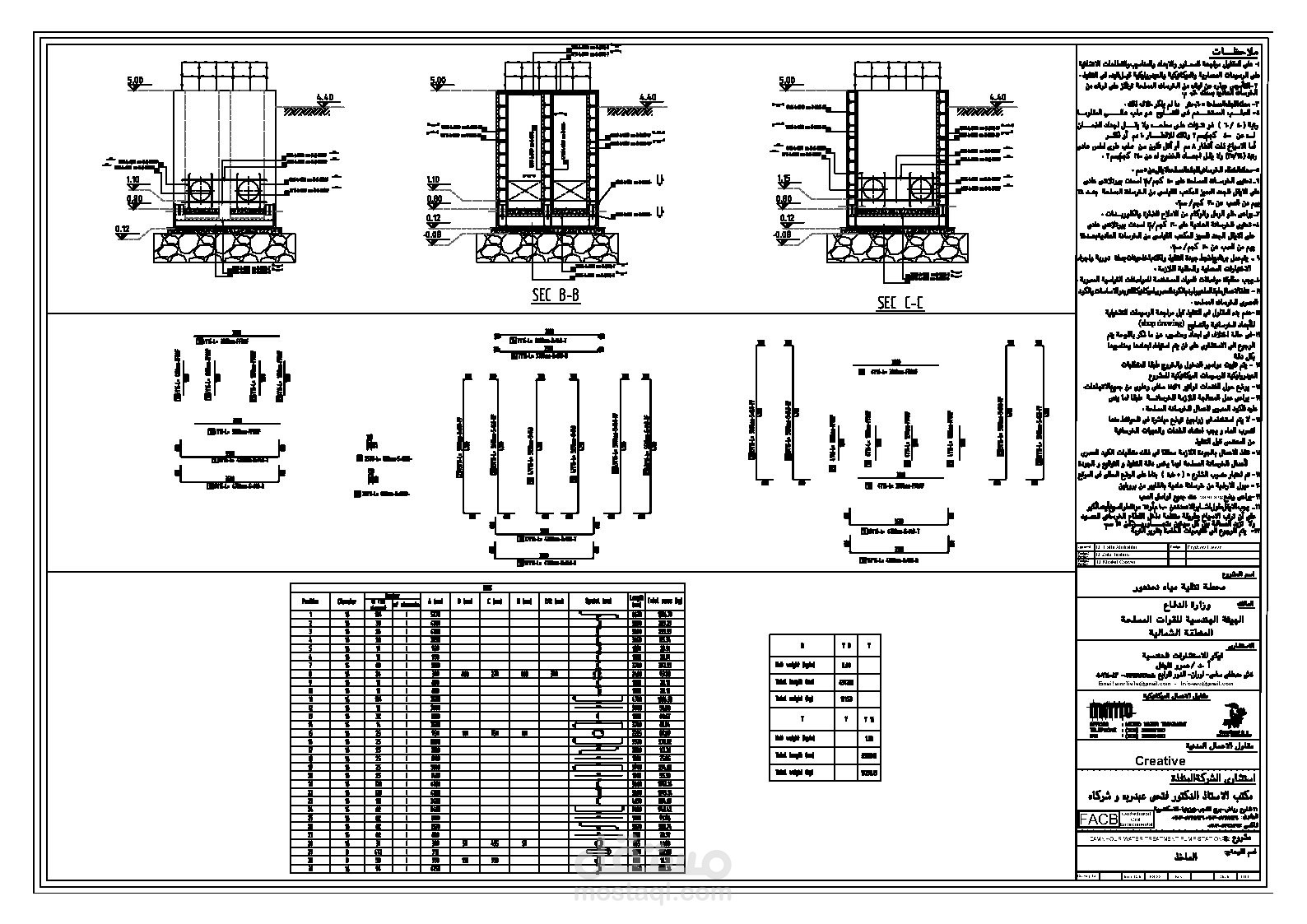
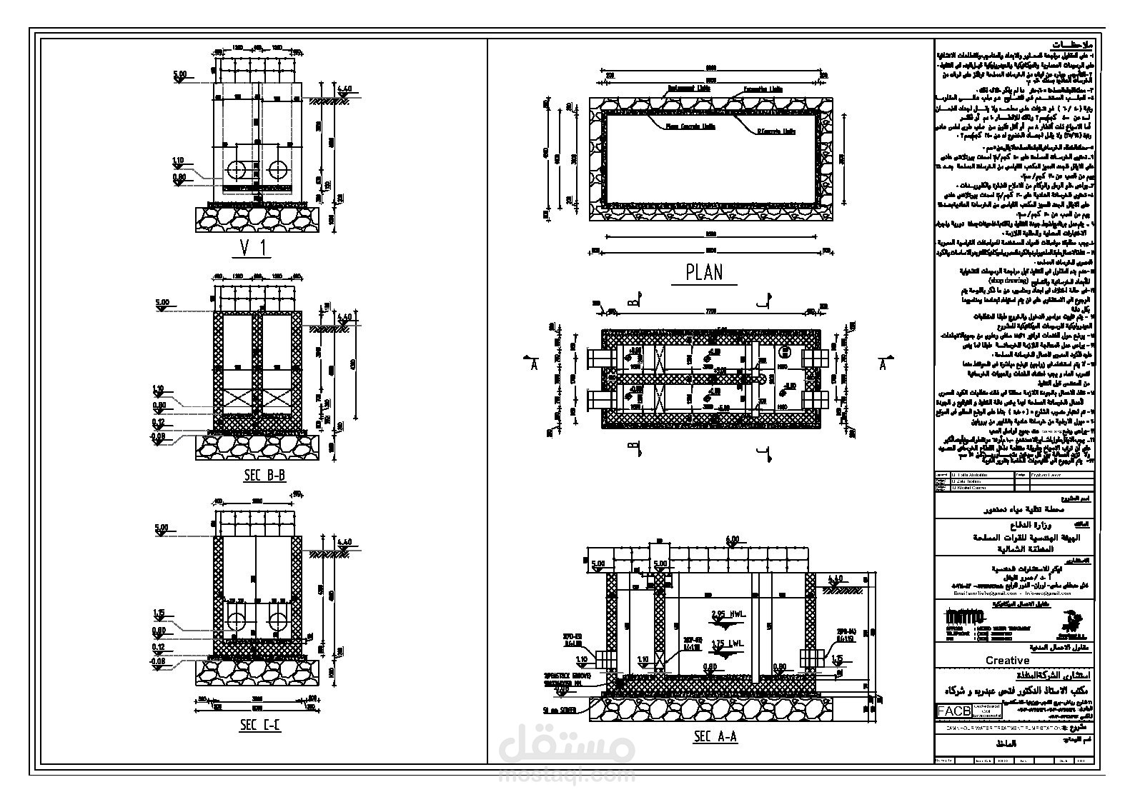
مبني الماخذ :-

عبارد عن خزان صغير يعمل علي سحب المياه من الترعه وبدايه فلترتها لتهيئه دخولها علي اول مرحله من مراحل التنقيه والمعالجه

بطاقة العمل

اسم المستقل
عدد الإعجابات
0
عدد المشاهدات
13
تاريخ الإضافة
المهارات