تفاصيل العمل

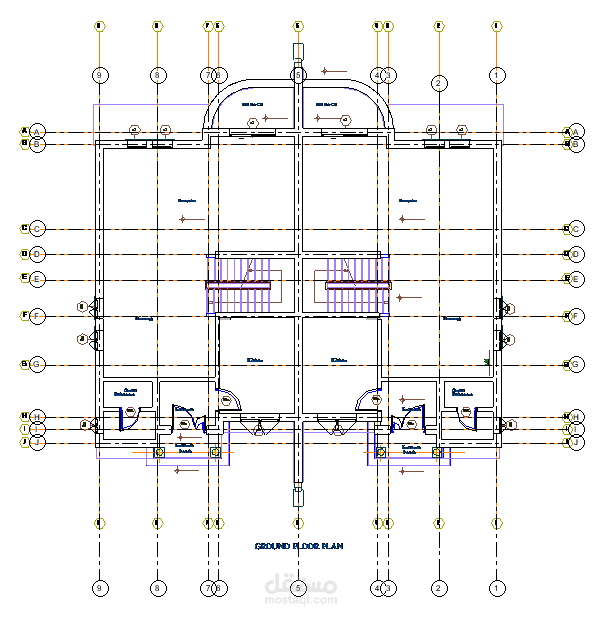
تصميم معمارى لفيلا قابل للتعديل طبقا لمساحة الارض مع عمل مساقط افية للادوار .

تصميم الفيلا باستخدام برنامج ال Revit

عمل المساقط الافقية للادوار .

عمل الواجهات المعمارية للفيلا .

بطاقة العمل

اسم المستقل
عدد الإعجابات
0
عدد المشاهدات
28
تاريخ الإضافة