الرئيسية
المستقلين
Qasem Q.
معرض الأعمال
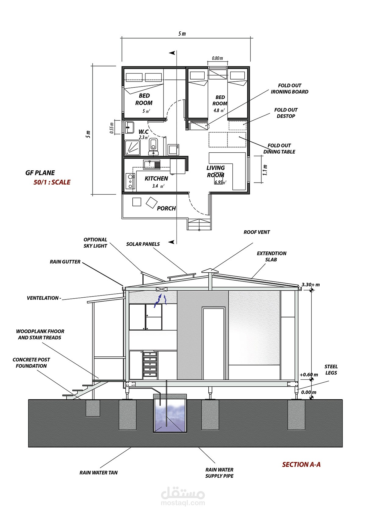
تصميم مأوي متنقل
معرض الأعمال
اطلب عمل مماثل
تفاصيل العمل
تصميم لمأوى متنقل قابل للتوسع حسب الحاجة
بطاقة العمل
اسم المستقل
Qasem Q.
عدد الإعجابات
0
عدد المشاهدات
466
تاريخ الإضافة
29/08/2018
×