تفاصيل العمل

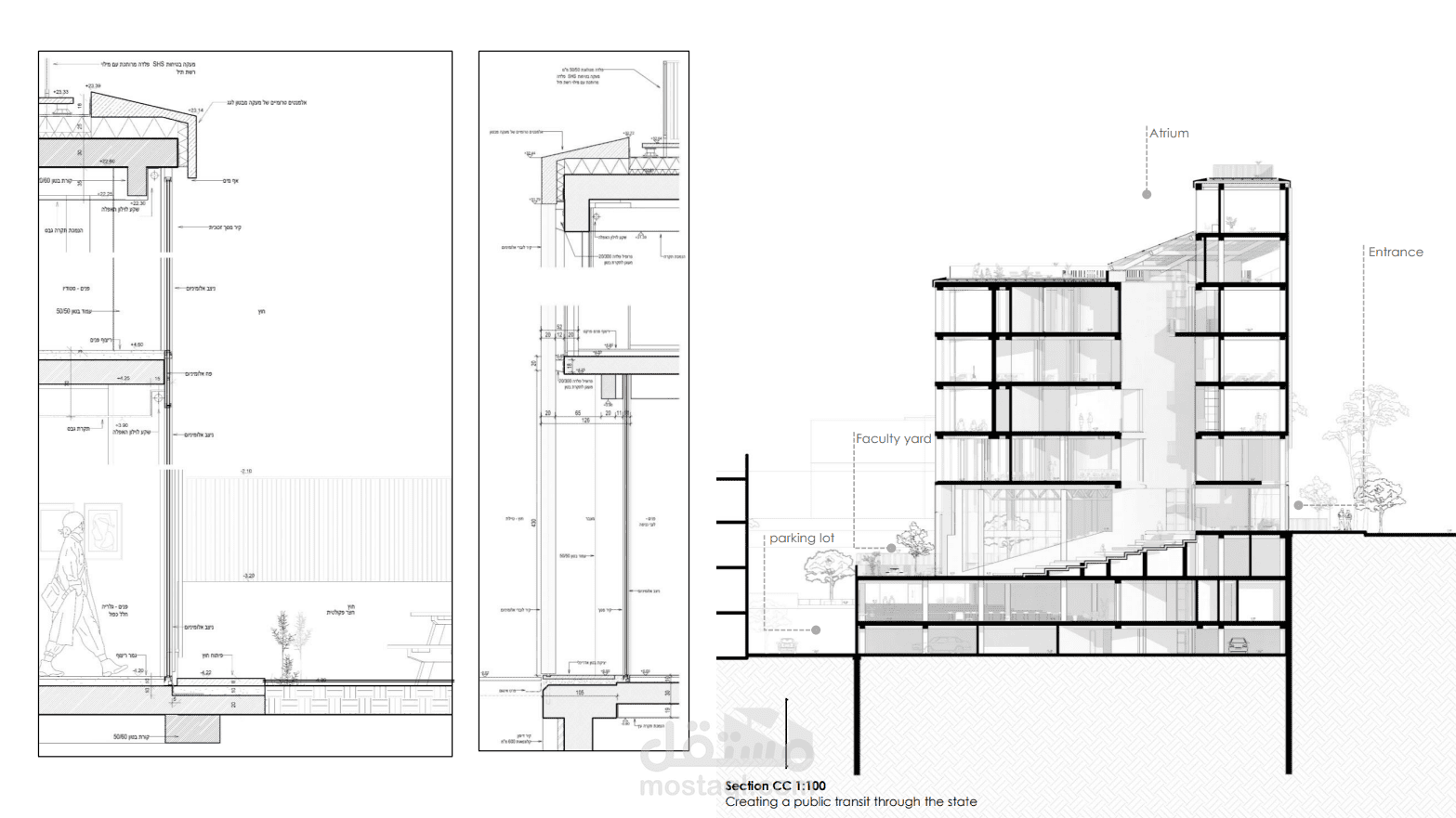
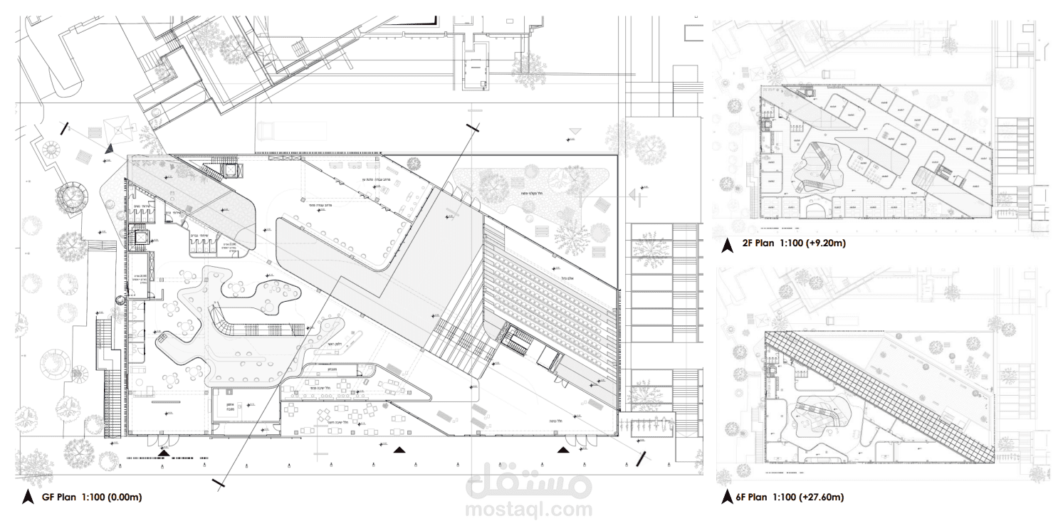
The project, which is planned as a Faculty of Architecture and Urban Planning

at the Technion, Haifa, is located near the current Faculty of Architecture.

Its positioning at the intersection with the Technion's central promenade and

lawn and on the other side with the 'Entrance Square' aims to play a focal

point and a public axis, attracting all Technion students to enjoy and see the

works and submissions of the advanced students on display along this axis.

The building is divided between two main paths, one is for all the students of

the Technion, and the other is more private that leads to the Faculty garden.

In addition to the unique main movement system that connects the floors of

the building and creates views from floor to floor and seating from the

surrounding area, using a delicate and exposed material of architectural

concrete

بطاقة العمل

اسم المستقل
عدد الإعجابات
0
عدد المشاهدات
76
تاريخ الإضافة
تاريخ الإنجاز
المهارات