الرئيسية
المستقلين
Mary M.
معرض الأعمال
تصميم مخططات 2d
معرض الأعمال
اطلب عمل مماثل
تفاصيل العمل
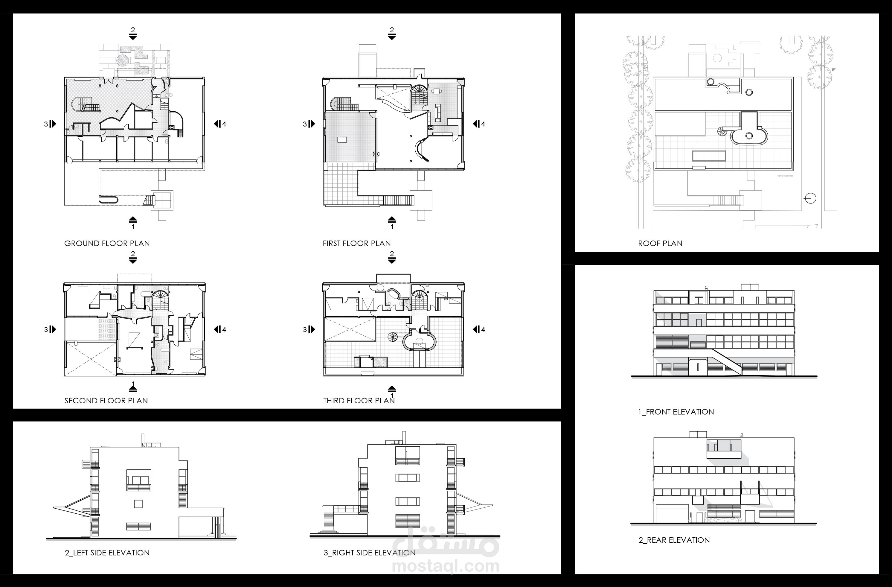
تصميم مخططات 2d لـ فبناء سكني صغير ثلاثة ادوار
بطاقة العمل
اسم المستقل
Mary M.
عدد الإعجابات
0
عدد المشاهدات
111
تاريخ الإضافة
28/04/2024
المهارات
تصميم نماذج 3D
3ds Max
البناء المعماري
فوتوشوب
أوتوكاد
تصميم منزل
تصميم الواجهات المعمارية
تصميم ديكور
تصميم فلل
×