الرئيسية
المستقلين
يوسف م.
معرض الأعمال
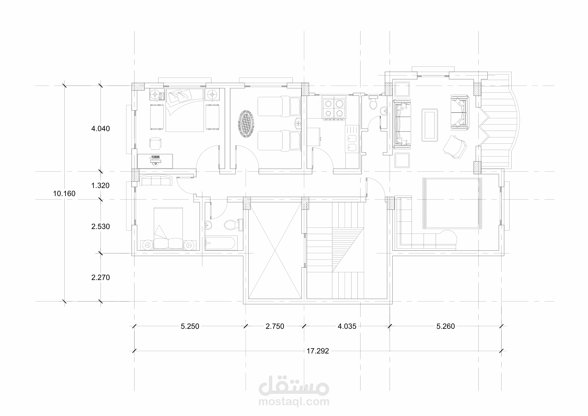
مسقط افقي لشقة سكنية
معرض الأعمال
اطلب عمل مماثل
تفاصيل العمل
مسقط افقي لشقة سكنية
تم تنفيذ هذا المشروع باستخدام تطبيق الرسم الهندسي auto cad
ملفات مرفقة
PDF
Drawing2-Model.pdf
(125.13KB)
بطاقة العمل
اسم المستقل
يوسف م.
عدد الإعجابات
0
عدد المشاهدات
301
تاريخ الإضافة
23/04/2024
المهارات
أوتوكاد
الهندسة
تصميم معماري
تصميم 2d
هندسة معمارية
تصميم مخططات معمارية
×