تفاصيل العمل

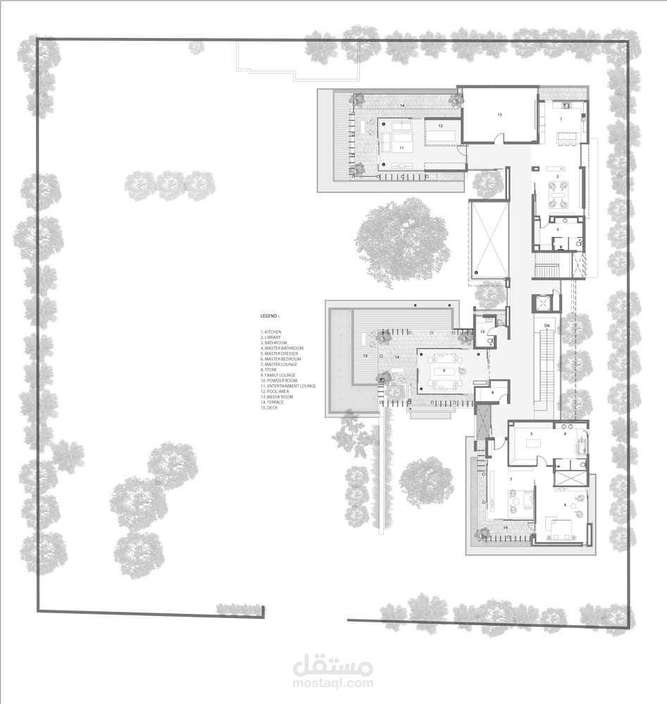
In this project,

our focus was on integrating the surrounding environment with the interior spaces to create an atmosphere that helps people enjoy nature and the building fuses with the shape of the external environment and works with it in harmony.

1- Choosing natural materials that reflect the nature of the place.

2- Dividing the spaces to give a view of the outdoor gardens and plants.

3- Taking into account the direction of the sun and the movement of the wind.

بطاقة العمل

اسم المستقل
عدد الإعجابات
0
عدد المشاهدات
77
تاريخ الإضافة
تاريخ الإنجاز
المهارات