الرئيسية
المستقلين
Zakaria H.
معرض الأعمال
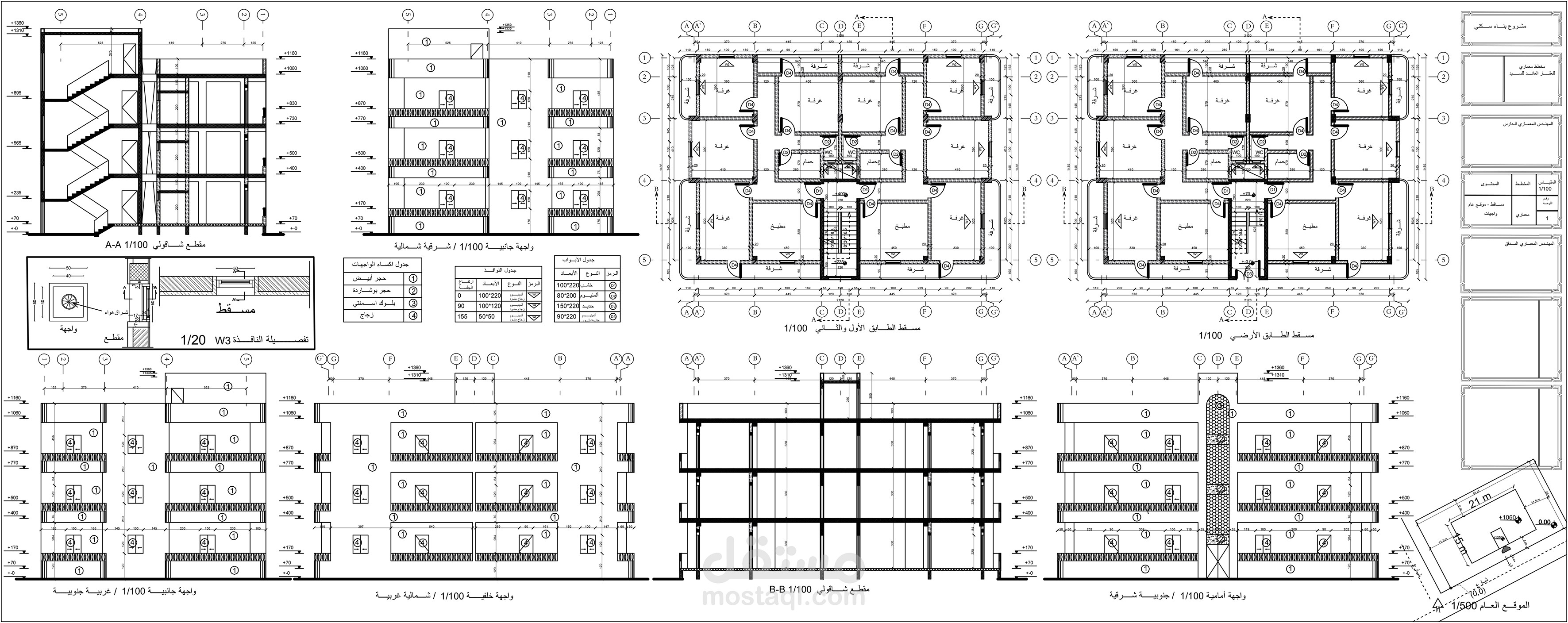
مخططات بناء سكني
معرض الأعمال
اطلب عمل مماثل
تفاصيل العمل
انجاز مخططات تنفيذية معمارية لبناء سكني بمساحة 310 م2 على 3 طوابق.
بطاقة العمل
اسم المستقل
Zakaria H.
عدد الإعجابات
1
عدد المشاهدات
38
تاريخ الإضافة
11/03/2024
تاريخ الإنجاز
01/10/2022
المهارات
أوتوكاد
تصميم منزل
تصميم معماري
هندسة معمارية
مخططات تنفيذية
تصميم مخططات معمارية
×