الرئيسية
المستقلين
Zakaria H.
معرض الأعمال
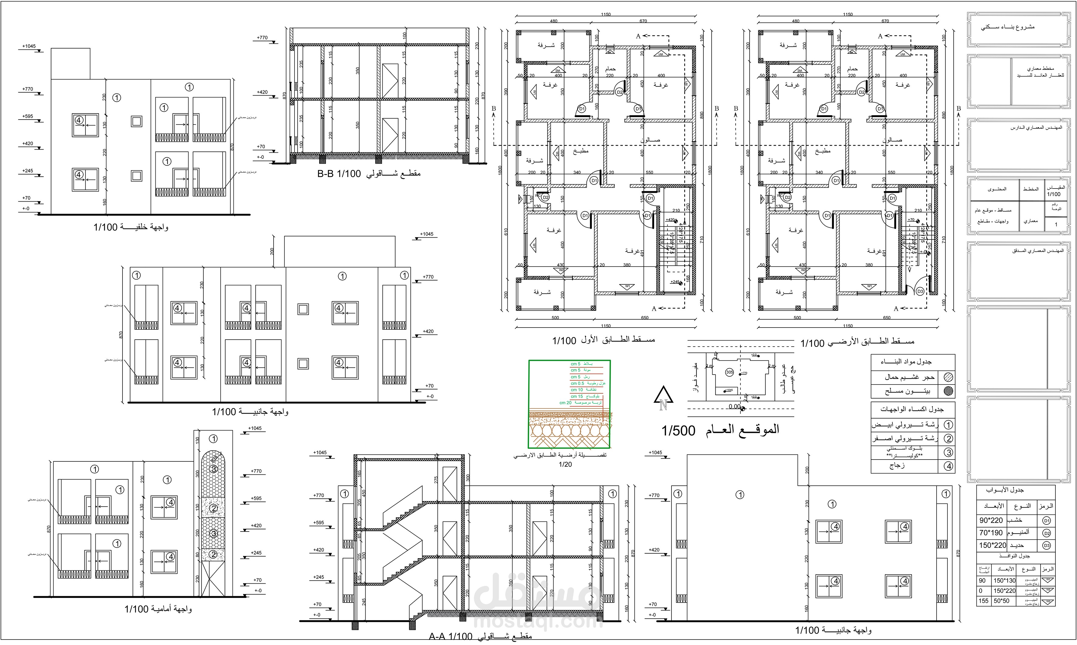
مخططات بناء سكني
معرض الأعمال
اطلب عمل مماثل
تفاصيل العمل
انجاز مخططات تنفيذية معمارية لبناء سكني بمساحة 190 م2 على طابقين.
بطاقة العمل
اسم المستقل
Zakaria H.
عدد الإعجابات
0
عدد المشاهدات
18
تاريخ الإضافة
11/03/2024
تاريخ الإنجاز
01/07/2018
المهارات
أوتوكاد
رسم الخرائط
تصميم معماري
هندسة معمارية
مخططات تنفيذية
تصميم مخططات معمارية
×