الرئيسية
المستقلين
Zakaria H.
معرض الأعمال
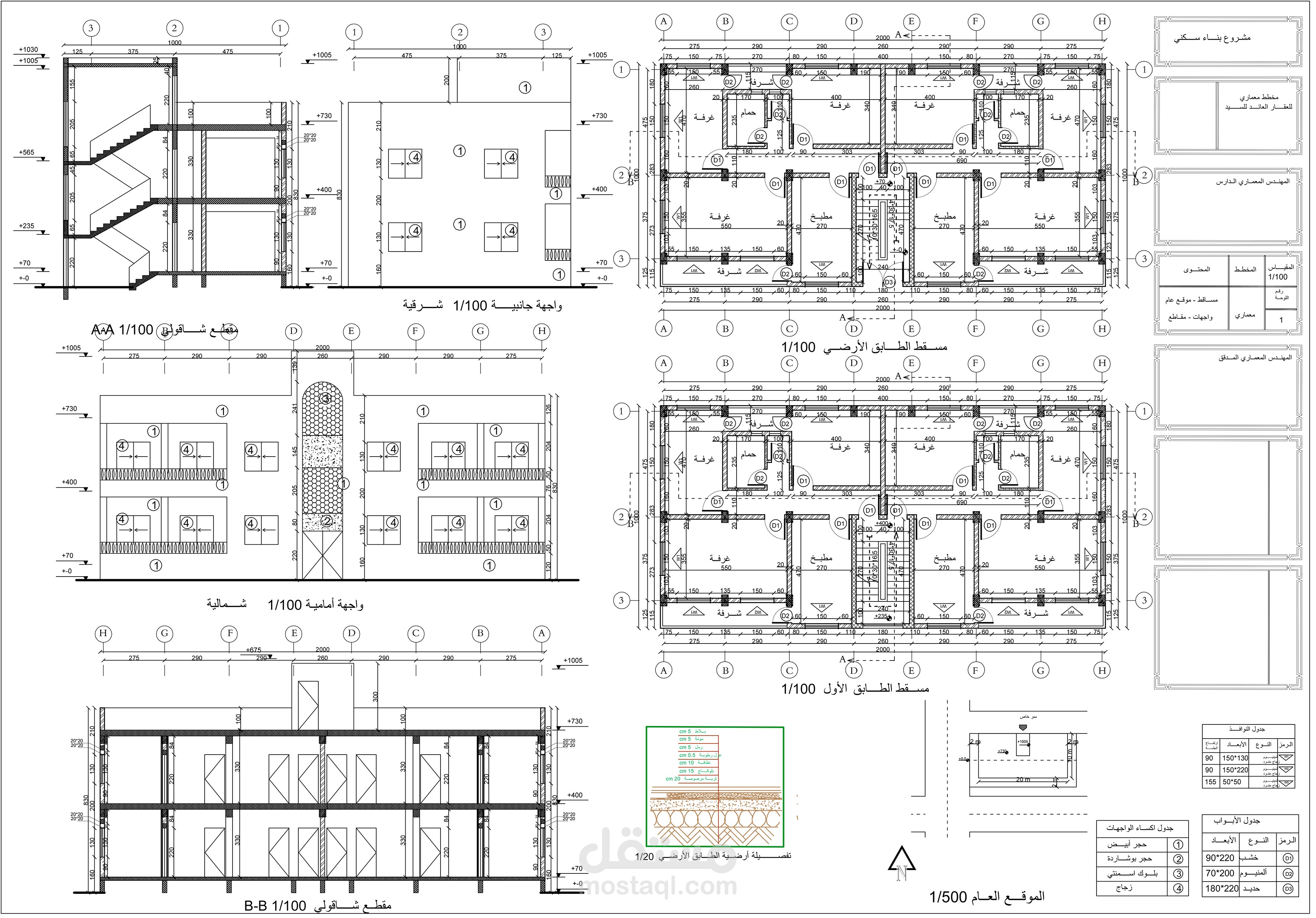
مخططات بناء سكني
معرض الأعمال
اطلب عمل مماثل
تفاصيل العمل
انجاز مخططات تنفيذية معمارية لبناء سكني بمساحة 200 م2 على طابقين.
بطاقة العمل
اسم المستقل
Zakaria H.
عدد الإعجابات
0
عدد المشاهدات
27
تاريخ الإضافة
11/03/2024
تاريخ الإنجاز
01/08/2019
المهارات
أوتوكاد
رسم الخرائط
تصميم معماري
هندسة معمارية
تصميم هندسي
مخططات تنفيذية
تصميم مخططات معمارية
×