تفاصيل العمل

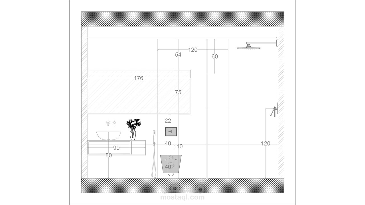
على طلب أحد العملاء غرفة نوم ماستر مع غرفة ملابس صغيرة و حمام خاص

ستايل موديرن

و تم أختيار المواد المستخدمة مع الاتفاق مع العميل

بطاقة العمل

اسم المستقل
عدد الإعجابات
2
عدد المشاهدات
99
تاريخ الإضافة
تاريخ الإنجاز
المهارات