تفاصيل العمل

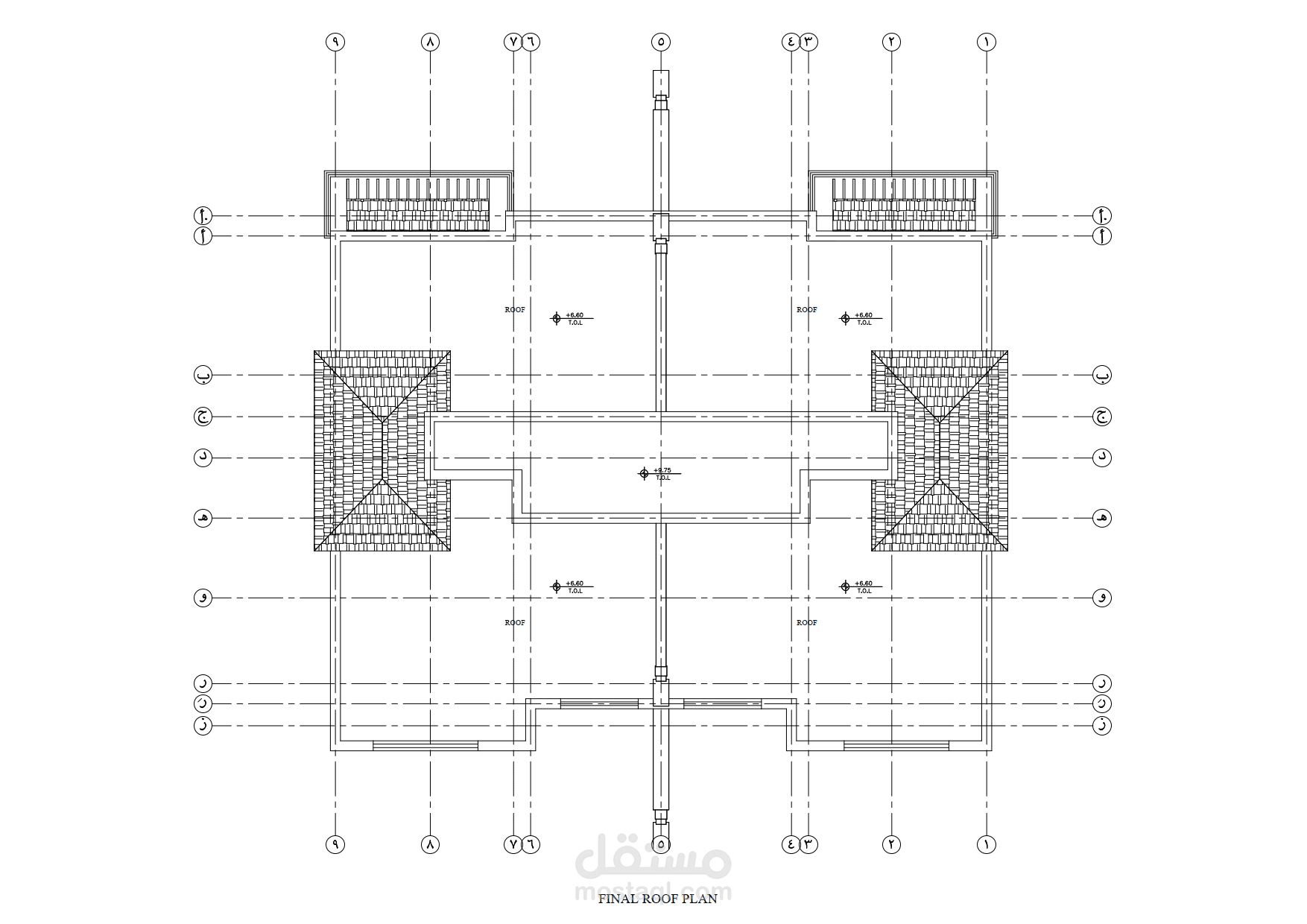
The structure system consists of:-

(solid slab)and combined footing with strap beam design . There are also stages of the building’s development from columns and roofs to the last stages of construction.

بطاقة العمل

اسم المستقل
عدد الإعجابات
0
عدد المشاهدات
31
تاريخ الإضافة
المهارات