تفاصيل العمل

The structure system consists of:-

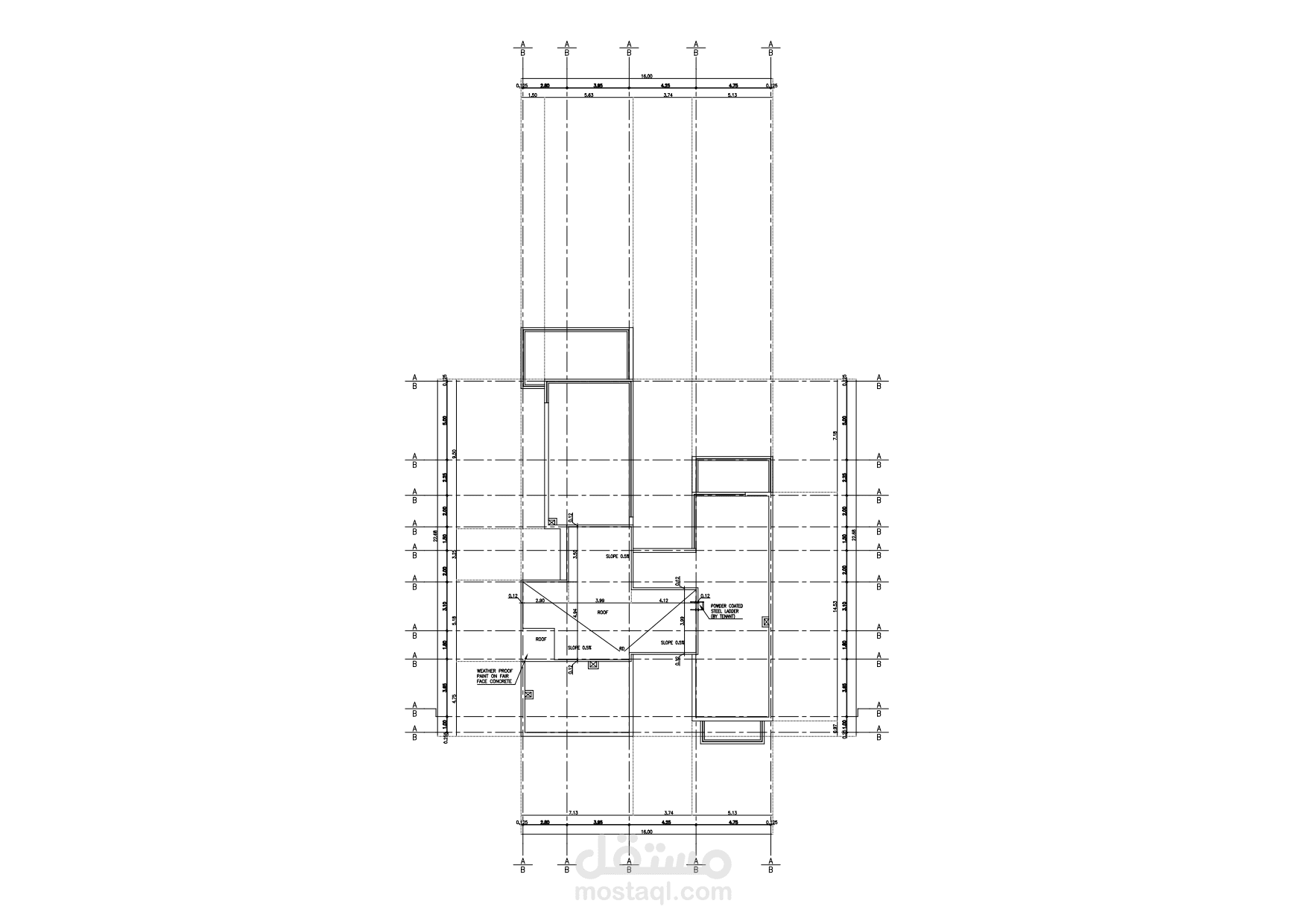
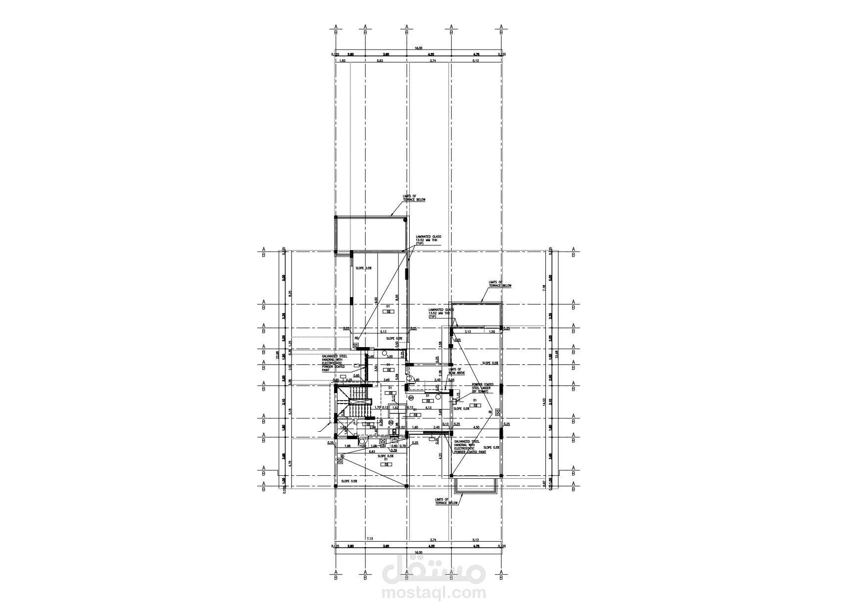
(solid slab)and combined footing with strap beam design . There are also stages of the building’s development from columns and roofs to the last stages of construction.

The ground floor consists of

1-Reception

2- Master bedroom

3-Private room for the driver

4-Dining room

5- Kitchen

6- Bath

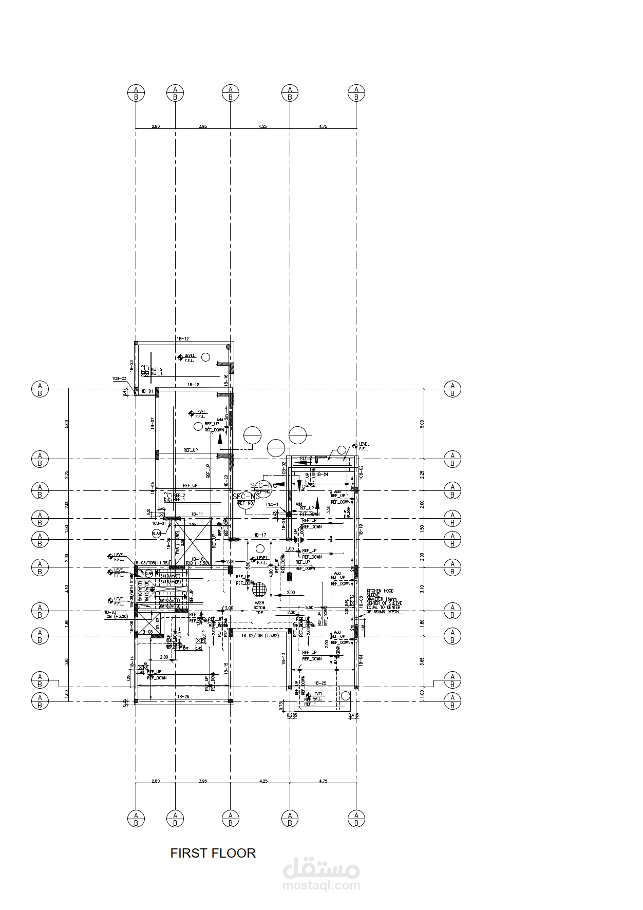
The First floor consists of

1- 2 Master bed room

2- 2 bed room

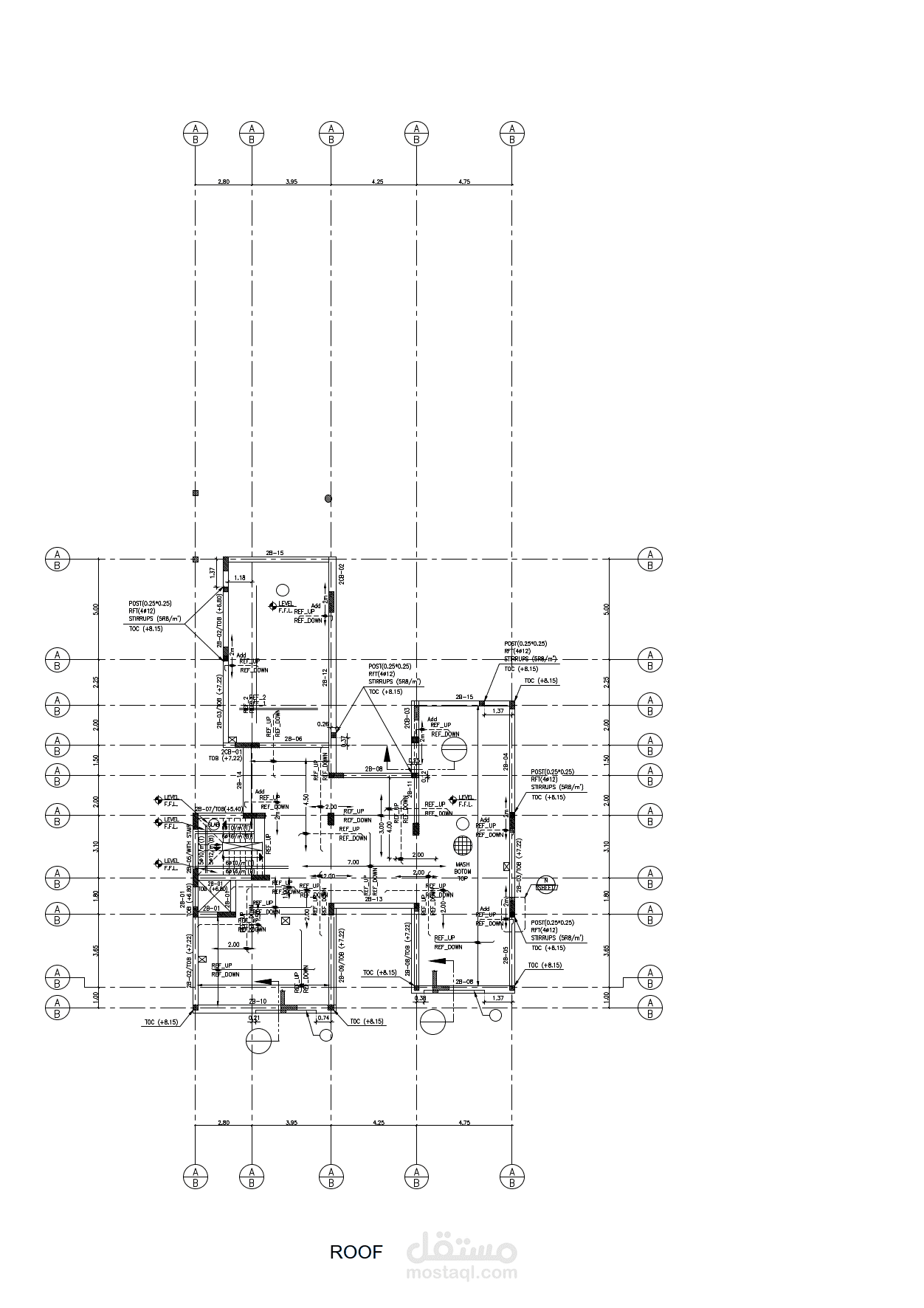
The PentHouse consists of

1- Living Room

2- Bed Room

3- Kitchen

4- Bath

بطاقة العمل

اسم المستقل
عدد الإعجابات
0
عدد المشاهدات
87
تاريخ الإضافة
المهارات