الرئيسية
المستقلين
Gina M.
معرض الأعمال
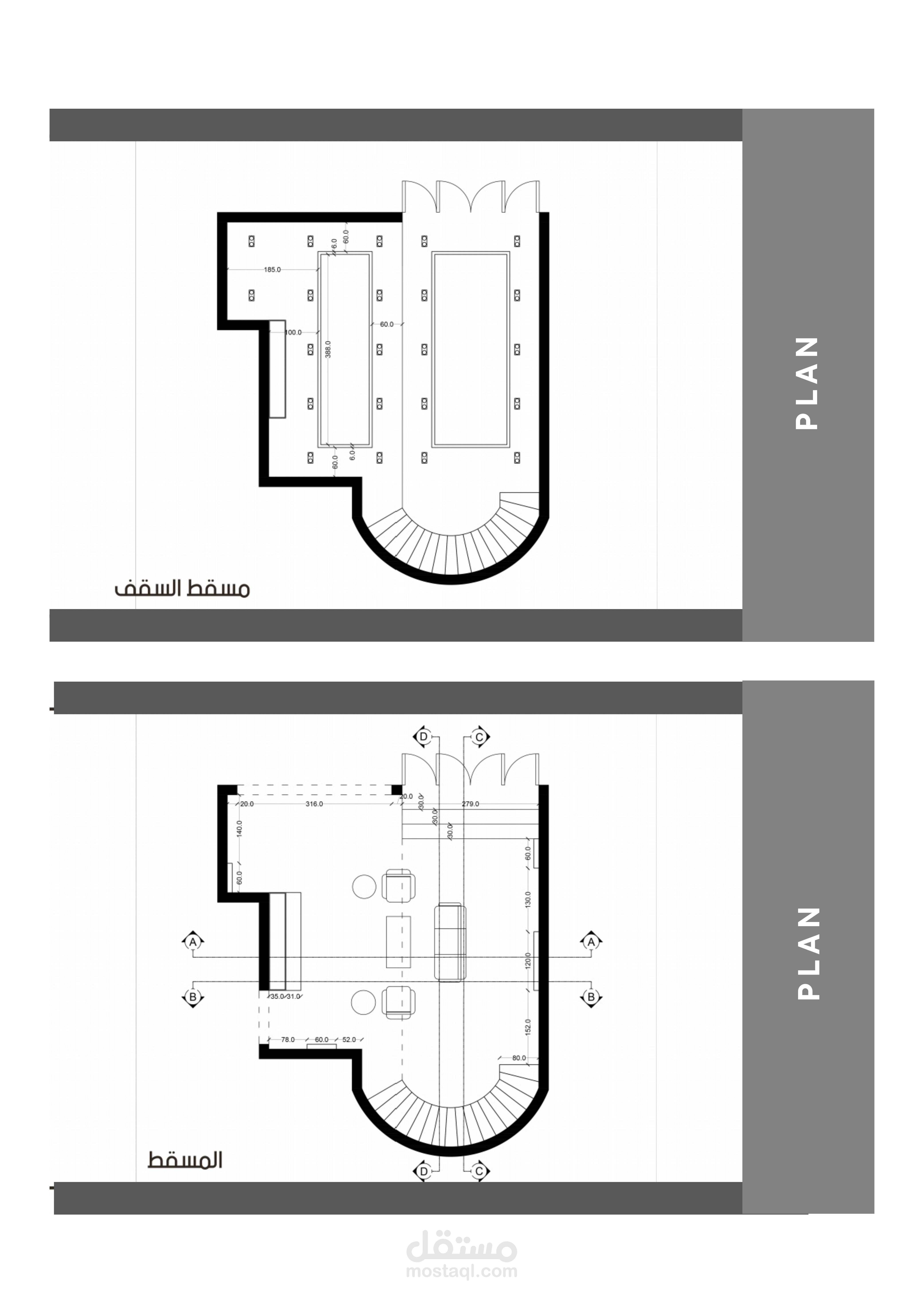
صالون -غرفة معيشة
معرض الأعمال
اطلب عمل مماثل
تفاصيل العمل
اعادة تأهيل صالون في منزل
بغداد العراق
بطاقة العمل
اسم المستقل
Gina M.
عدد الإعجابات
0
عدد المشاهدات
31
تاريخ الإضافة
22/01/2024
تاريخ الإنجاز
13/12/2023
المهارات
تصميم 3D
3ds Max
التصميم الإبداعي
تصميم داخلي
أوتوكاد
تصاميم ثري دي ماكس
×