تفاصيل العمل

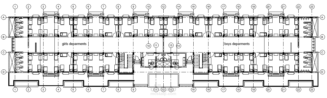
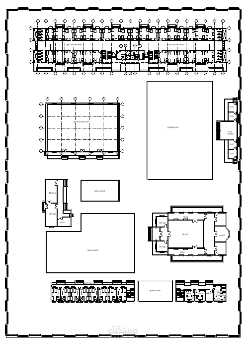
تحدد خطة بناء مبنى معسكرات (داخليه) الإستراتيجية الشاملة والخطوات التفصيلية المتبعة في تطوير منشأة مبنى معسكرات (داخليه) . تغطي الخطة عادة جوانب مختلفة، بما في ذلك التصميم المعماري، والاعتبارات الهيكلية، وأنظمة المرافق، وتدابير السلامة، والجداول الزمنية للمشروع

بطاقة العمل

اسم المستقل
عدد الإعجابات
0
عدد المشاهدات
70
تاريخ الإضافة
تاريخ الإنجاز
المهارات