الرئيسية
المستقلين
Gina M.
معرض الأعمال
عيادات عينية
معرض الأعمال
اطلب عمل مماثل
تفاصيل العمل
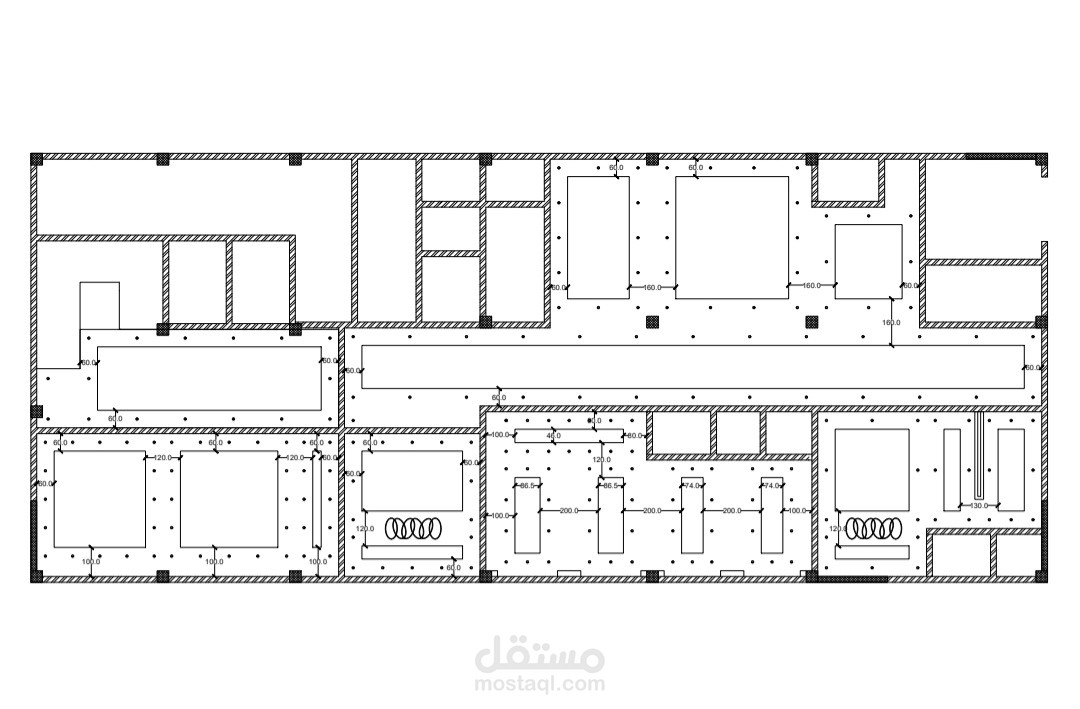
مركز طبي عيني
لعدة اطباء
غرفة استراحة اطباء
غرف فحص
استقبال و انتظار
سكرتارية...
بطاقة العمل
اسم المستقل
Gina M.
عدد الإعجابات
0
عدد المشاهدات
41
تاريخ الإضافة
04/11/2023
تاريخ الإنجاز
07/08/2023
المهارات
تصميم 3D
ريفيت
الفكرة التصميمية
التصميم الإبداعي
تصميم داخلي
فوتوشوب
تصميم معماري
تصاميم ثري دي ماكس
×