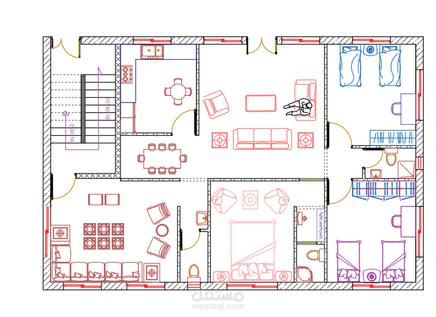
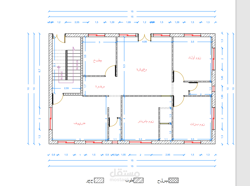
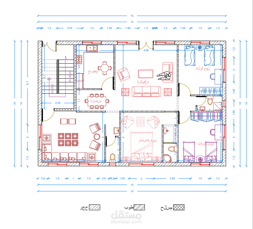
تفاصيل العمل

مخطط بيت بسيط من تصميمي بمساحة 150 متر مربع

ثلاث غرف نوم

نوم ماستر

نوم اولاد

نوم بنات

مطبخ

مرحاض عدد3

معيشة

درج

غرفة سفرة

تم الرسم بواسطة الاوتوكاد

بطاقة العمل

اسم المستقل
عدد الإعجابات
0
عدد المشاهدات
2396
تاريخ الإضافة
تاريخ الإنجاز
المهارات