تصميم عمارة سكنية عبد الرحمن القاضي بالسعودية

تفاصيل العمل

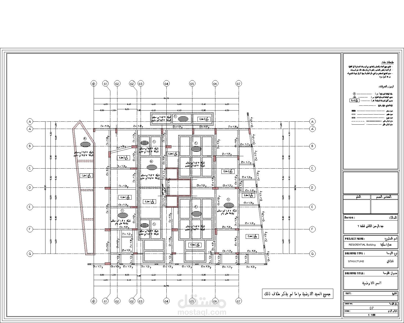
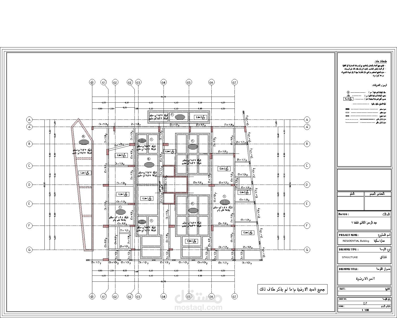
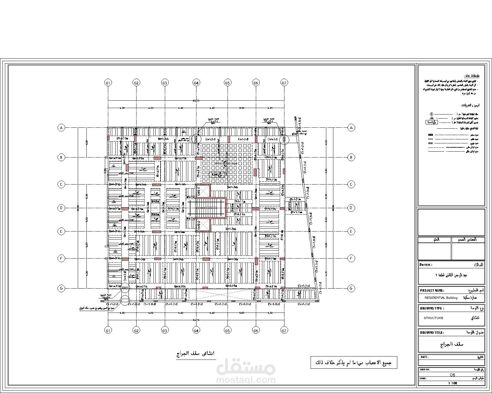
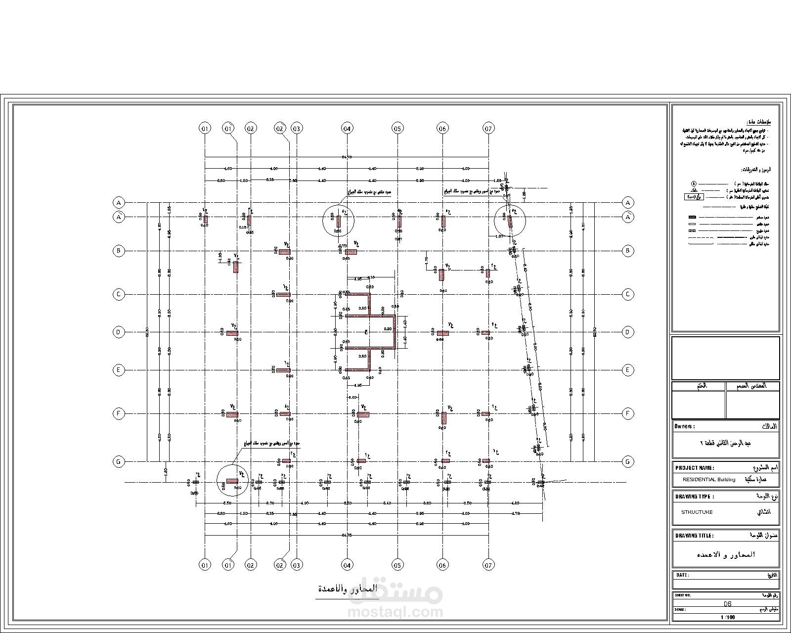
تصميم إنشائي لعمارة سكنية 5 أدوار بالسعودية وعمل المخططات الإنشائية اللازمة لتنفيذ المشروع وفقا للكود السعودي والأخذ فى الاعتبار أحمال الزلازل والرياح طبقا للمواصفات السعودية ، مع استخدام النظام الانشائي الاكثر استخداما بالمملكة وهو نظام الاسقف الهوردي نظرا لسهولة تنفيذه وتوفيره لكميات الحديد المستخدم .

وكانت البرامج المستخدمة فى التصميم هى البرامج المعتمدة بالمملكة العربية السعودية Etabs & Safe وباستخدام برنامج الرسم اتوكاد 2021

بطاقة العمل

اسم المستقل
عدد الإعجابات
0
عدد المشاهدات
93
تاريخ الإضافة
تاريخ الإنجاز
المهارات