تصميم انشائي فيلا سكنية لؤي زكي بالسعودية

تفاصيل العمل

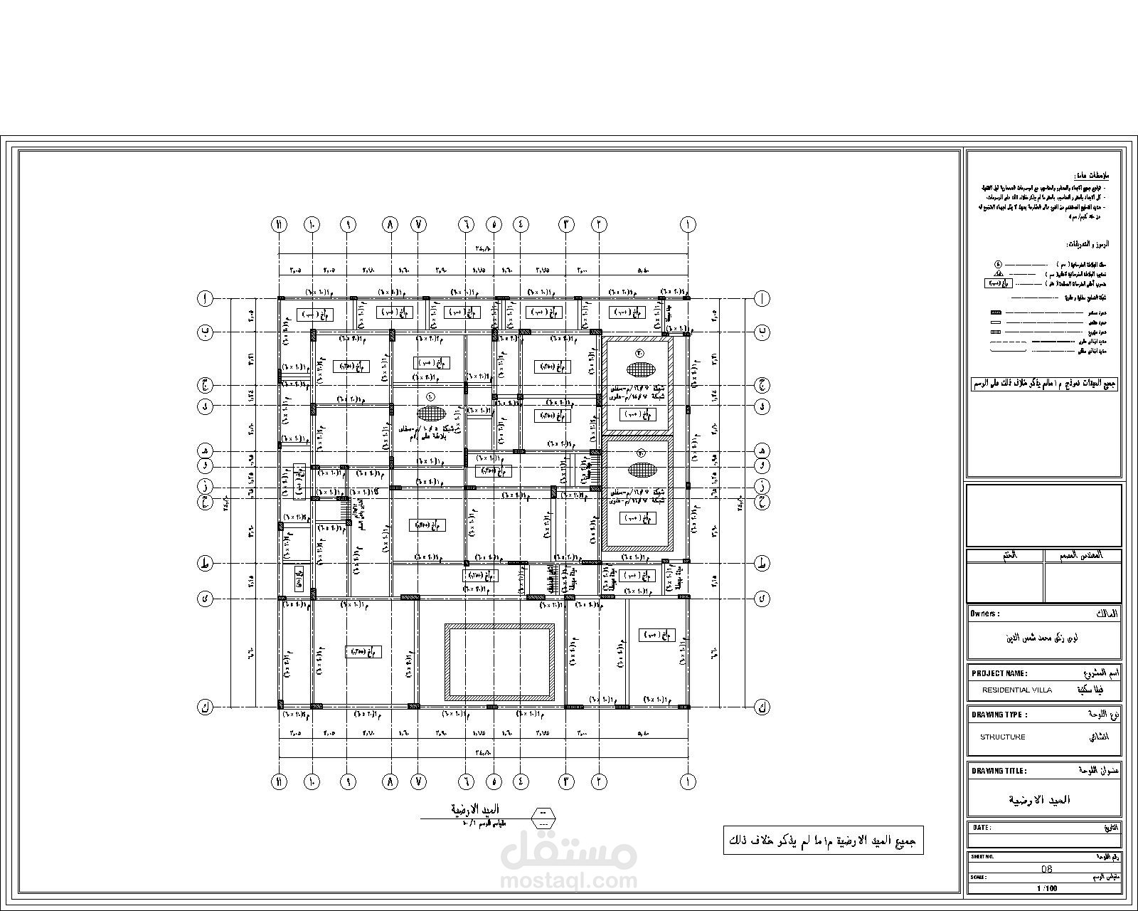
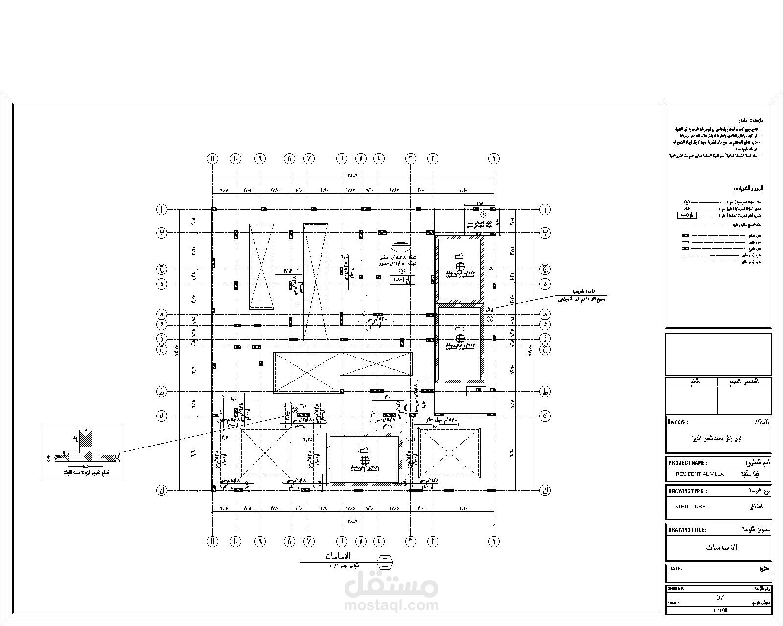
تصميم إنشائي لفيلا سكنية لؤي زكي بالسعودية وعمل المخططات الإنشائية اللازمة لتنفيذ المشروع وفقا للكود السعودي والأخذ فى الاعتبار أحمال الزلازل والرياح طبقا للمواصفات السعودية ، مع استخدام النظام الانشائي الاكثر استخداما بالمملكة وهو نظام الاسقف الهوردي نظرا لسهولة تنفيذه وتوفيره لكميات الحديد المستخدم .

وكانت البرامج المستخدمة فى التصميم هى البرامج المعتمدة بالمملكة العربية السعودية Etabs & Safe وباستخدام برنامج الرسم اتوكاد 2021

بطاقة العمل

اسم المستقل
عدد الإعجابات
0
عدد المشاهدات
40
تاريخ الإضافة
تاريخ الإنجاز
المهارات