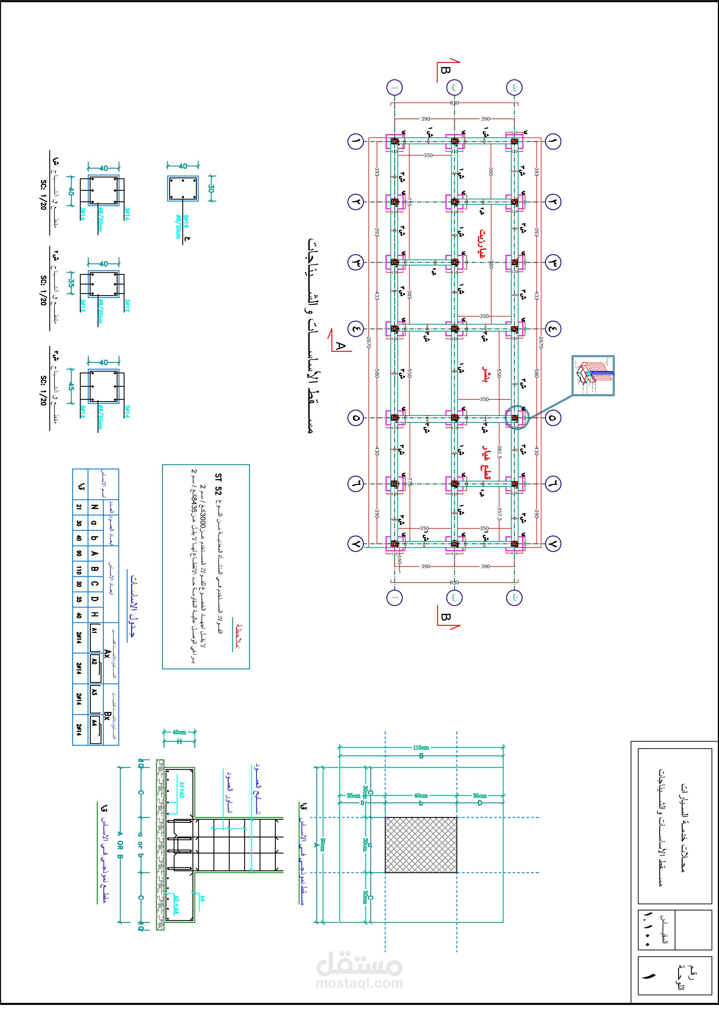
تفاصيل العمل

مشروع محطة محروقات نوذج أ على الطريق خارج المدينة تضم :

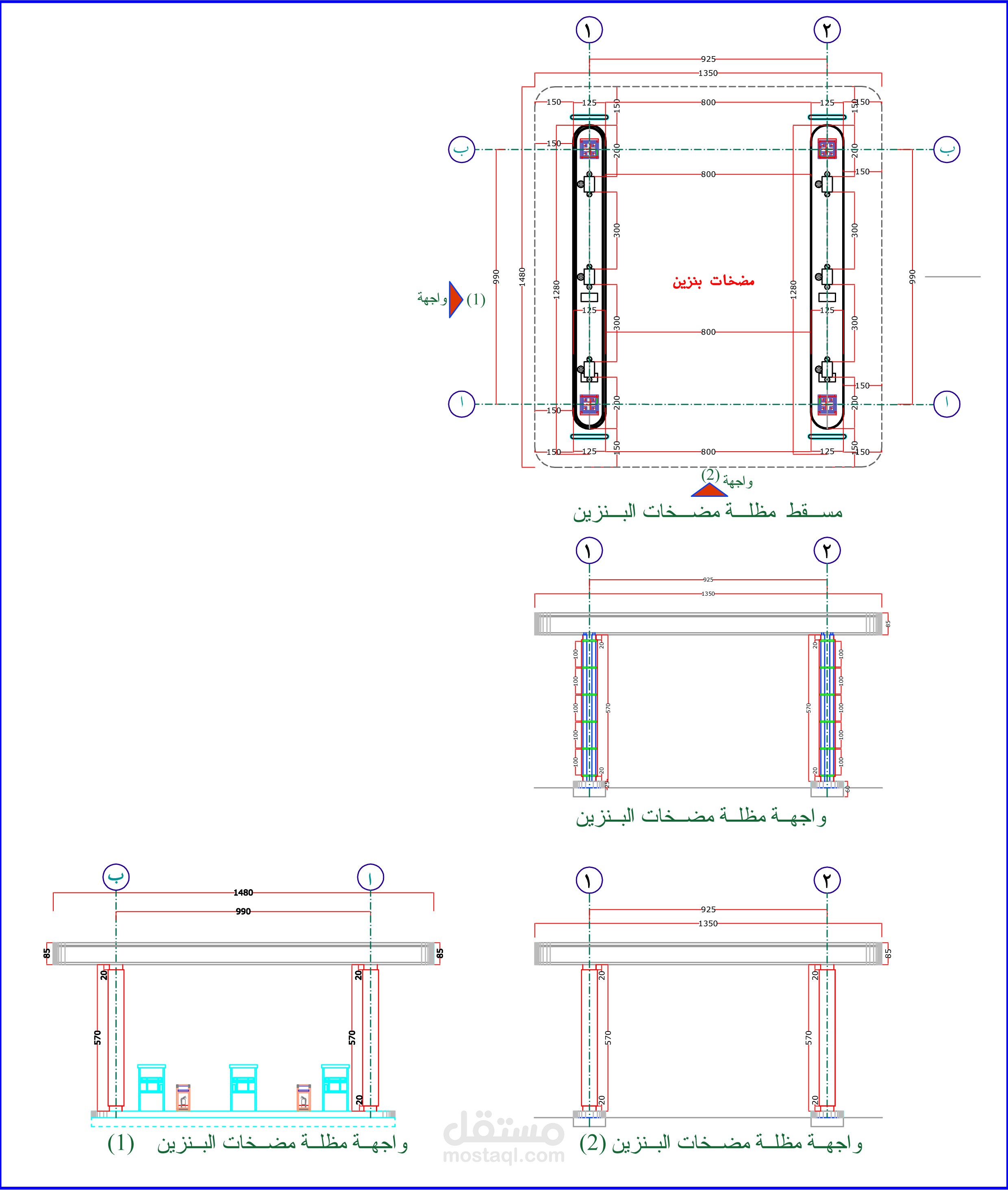
مضخة بنزين عدد 3

مضخة مازوت عدد 1

خدمة سيارت

مسجد

تموينات

صراف آلي

كوفيه شوب

خدمات

بنشر

غسيل سيارات

ملفات مرفقة

بطاقة العمل

اسم المستقل
عدد الإعجابات
1
عدد المشاهدات
66
تاريخ الإضافة
تاريخ الإنجاز