الرئيسية
المستقلين
Amira B.
معرض الأعمال
اطلب عمل مماثل
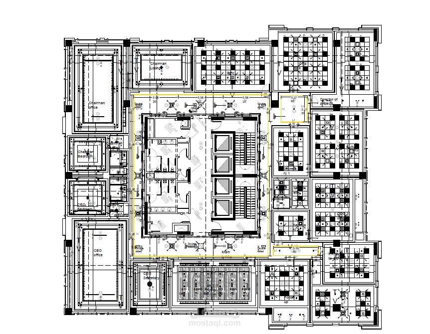
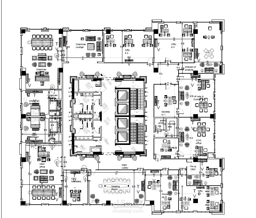
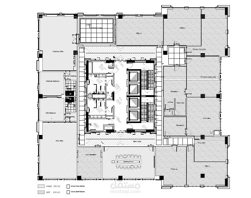
Administrative offices
تفاصيل العمل
Administrative spaces interior and architecture design and technical drawings
بطاقة العمل
اسم المستقل
Amira B.
عدد الإعجابات
0
عدد المشاهدات
17
تاريخ الإضافة
22/09/2023
×