تفاصيل العمل

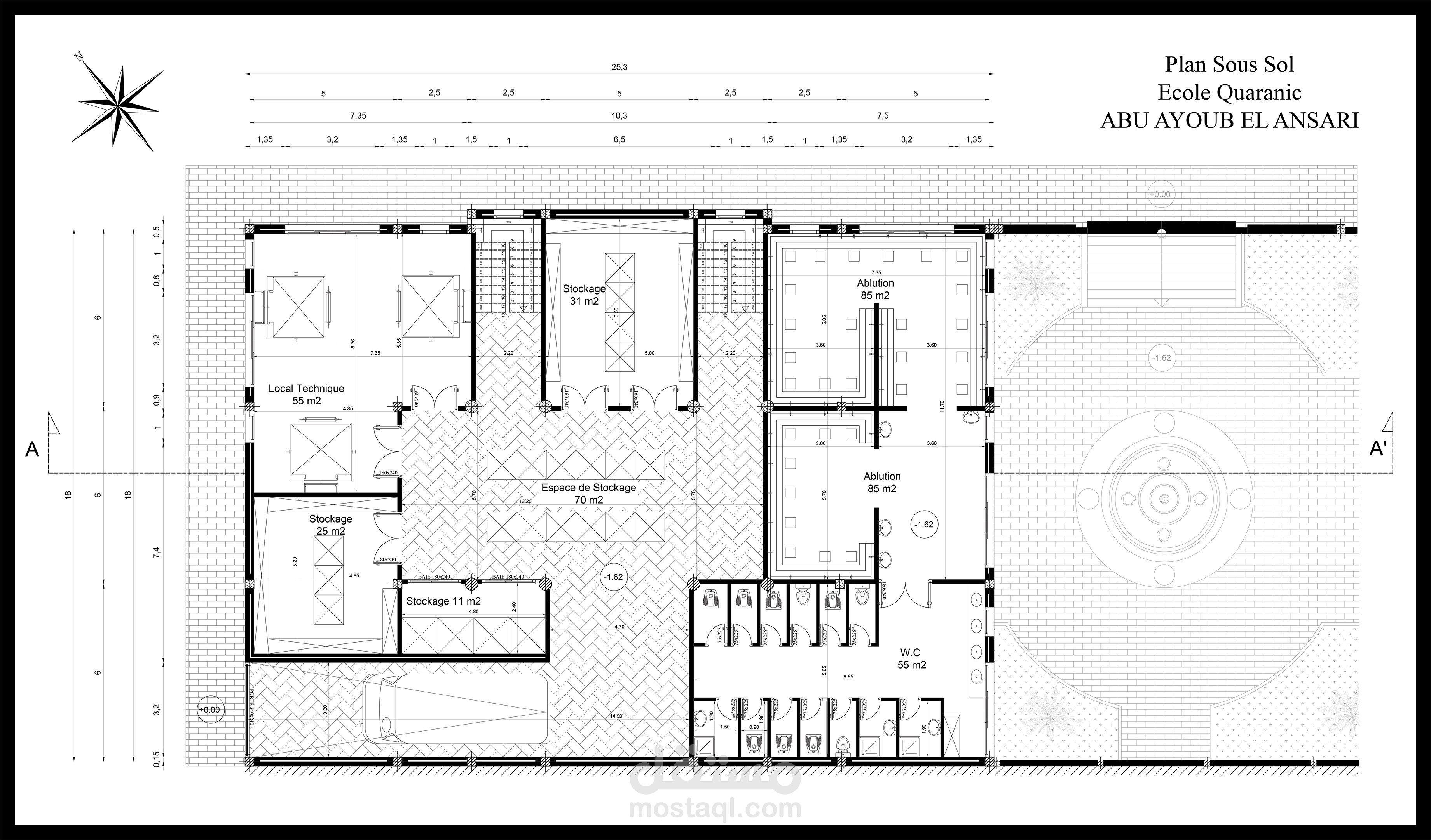
هذا مشروع المدرسة الإسلامية المعاصرة هو منشأة تعليمية ثانوية تبلغ مساحتها 7500 قدم مربع أو 700 متر مربع وتقع في قسنطينة بالجزائر. التصميم هو مزيج بين العمارة الإسلامية الحديثة والتقليدية، حيث يُسلط الضوء على الوظائف والتكلفة.

تم اختيار المواد بعناية من المدينة لتوفير الكفاءة التكلفية والاستدامة. تم تصميم توجيه وموقع المبنى بعناية لتحسين التهوية الطبيعية والإشعاع الشمسي، مما يسهم في كفاءة الطاقة للمبنى.

الهيكل نفسه بسيط، ولكنه قوي، وتم بناؤه من الخرسانة المسلحة. كمصمم وحيد للمشروع، أنا فخور بأنني قمت بإنشاء جميع الخطط والصور والتحريكات والدراسات اللازمة لهذه المنشأة التعليمية المبتكرة.

بطاقة العمل

اسم المستقل
عدد الإعجابات
1
عدد المشاهدات
1442
تاريخ الإضافة
تاريخ الإنجاز
المهارات