تفاصيل العمل

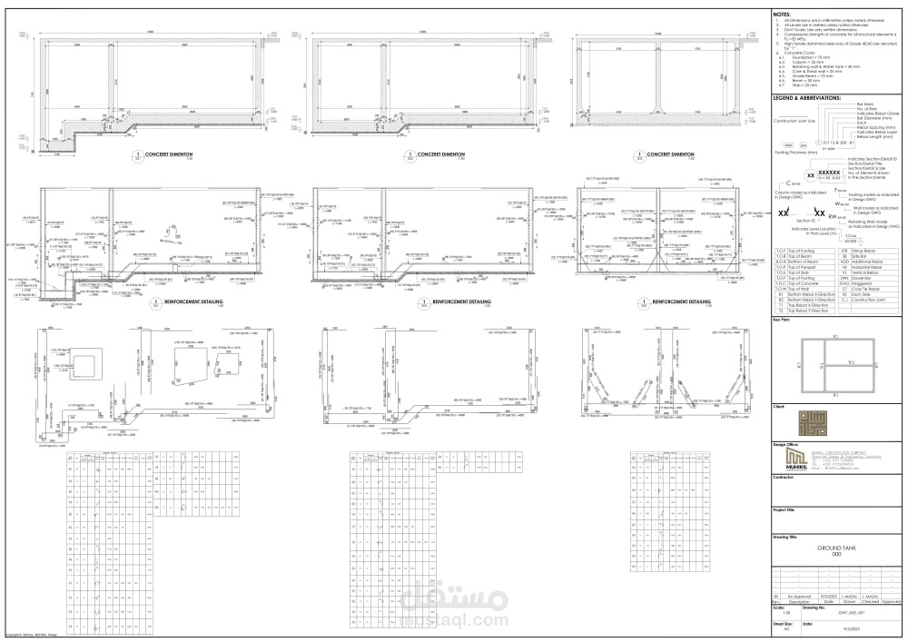
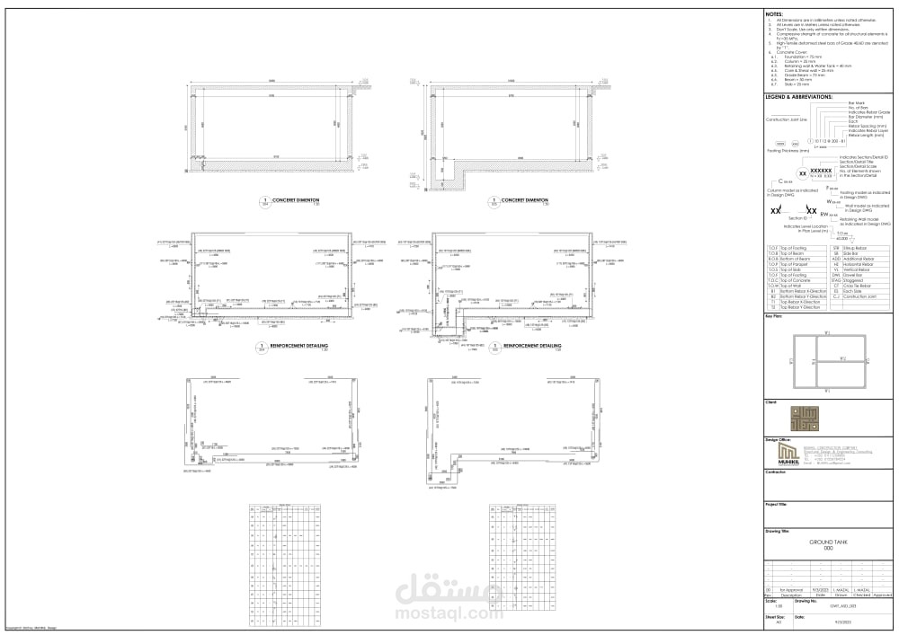
Shop Drawing for Ground Water Tank

A detailed drawing of a ground water tank, calculating the quantities of reinforcing, the quantities of concrete, and the shape of the pieces of bar and their locations

بطاقة العمل

اسم المستقل
عدد الإعجابات
1
عدد المشاهدات
329
تاريخ الإضافة