تفاصيل العمل

تصميم مخطط معماري لفيلا علي طراز العمارة النجدية مكون من :

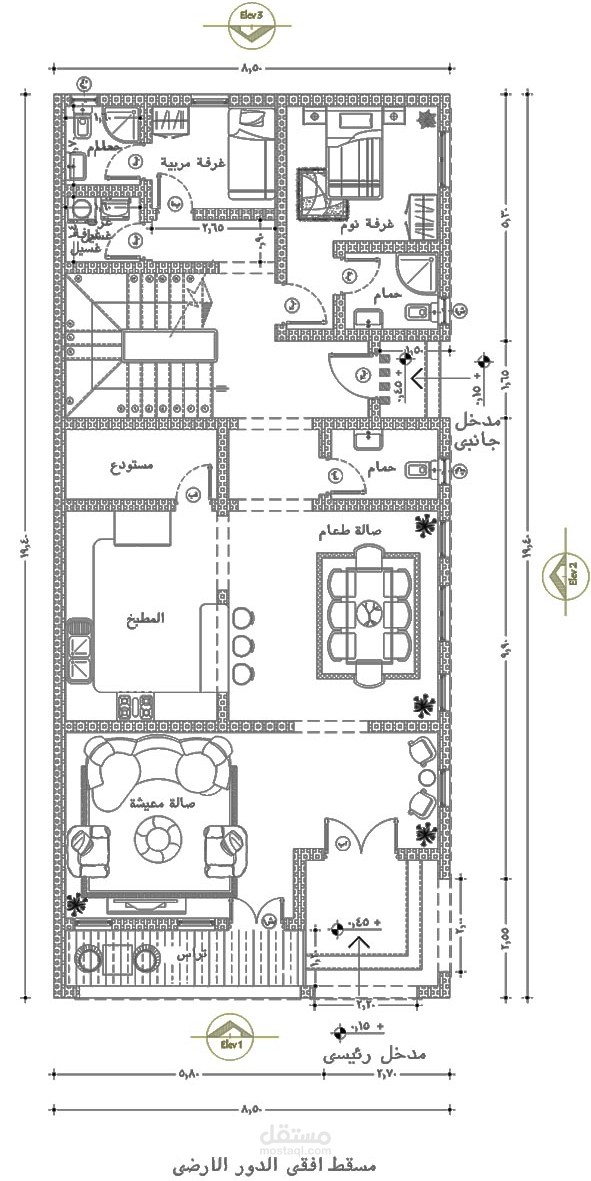
- مسقط أفقي للدور الأرضي مفروش و بالمقاسات

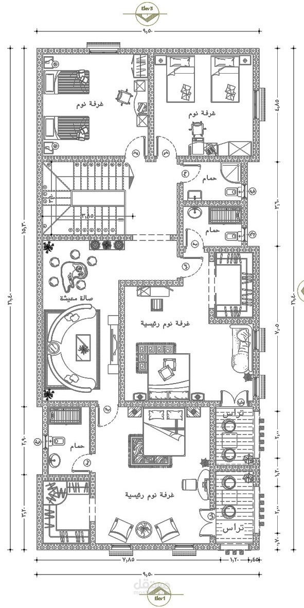
- مسقط أفقي للدور الأول مفروش و بالمقاسات

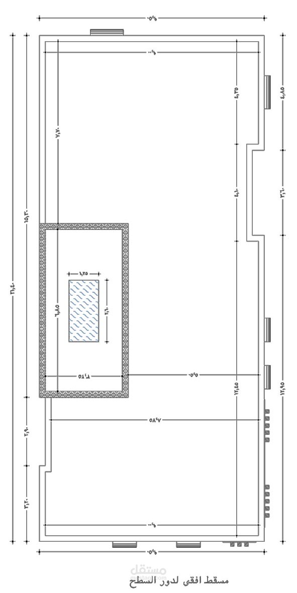
- مسقط أفقي للدور للروف بالمقاسات

-واجهات

بطاقة العمل