تفاصيل العمل

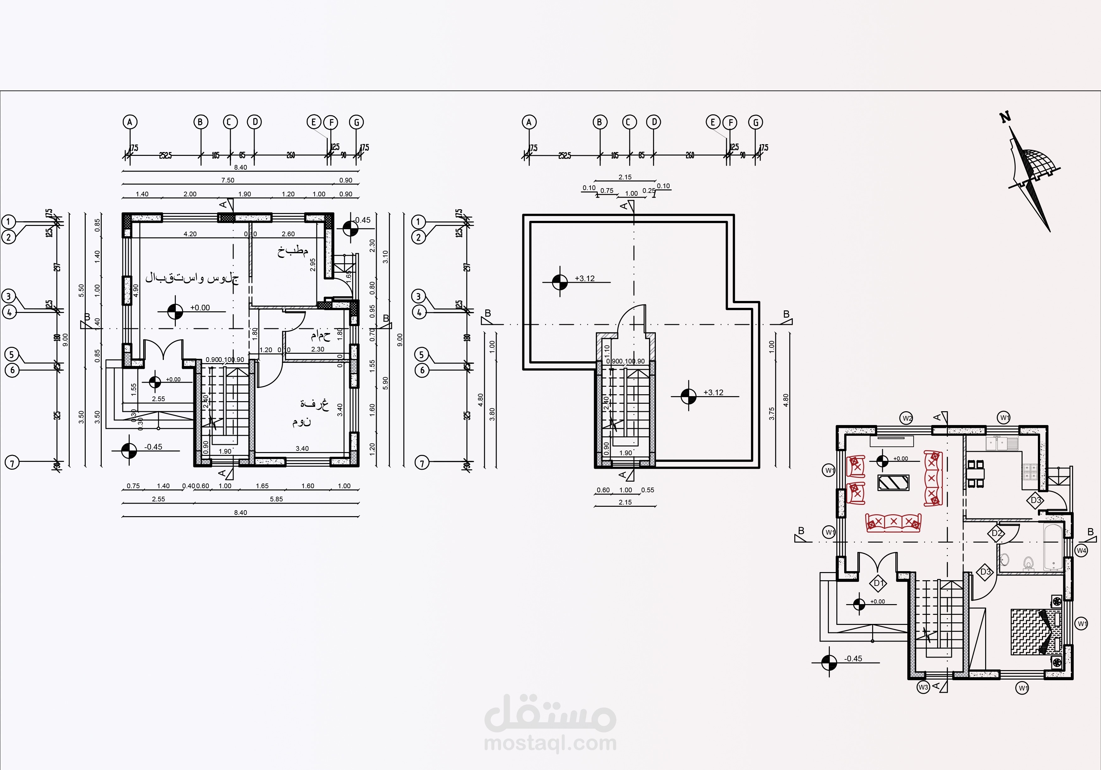
أعمالي الأخيرة في تصميم ثنائي الأبعاد على برنامج أوتوديسك أوتوكاد تُظهر مخططًا دقيقًا لمنزل حديث تم تصميمه بعناية. لقد استخدمت أدوات الدقة في أوتوكاد لإنشاء تخطيطات دقيقة للغرف، وتسمية المساحات الرئيسية، ودمج رموز الأبواب والنوافذ. تضمن استخدام طبقات متميزة، وسماكات خطوط متفاوتة، وتوضيحات مدروسة تمثيلًا واضحًا ومفيدًا. يُجسِّد هذا المشروع مهاراتي في رسم المخططات المعمارية واهتمامي بالتفاصيل، مما يجعله أداة أساسية للتواصل الفعّال في عملية التصميم والبناء.

بطاقة العمل

اسم المستقل
عدد الإعجابات
0
عدد المشاهدات
11
تاريخ الإضافة
المهارات