الرئيسية
المستقلين
Ahmad E.
معرض الأعمال
اطلب عمل مماثل
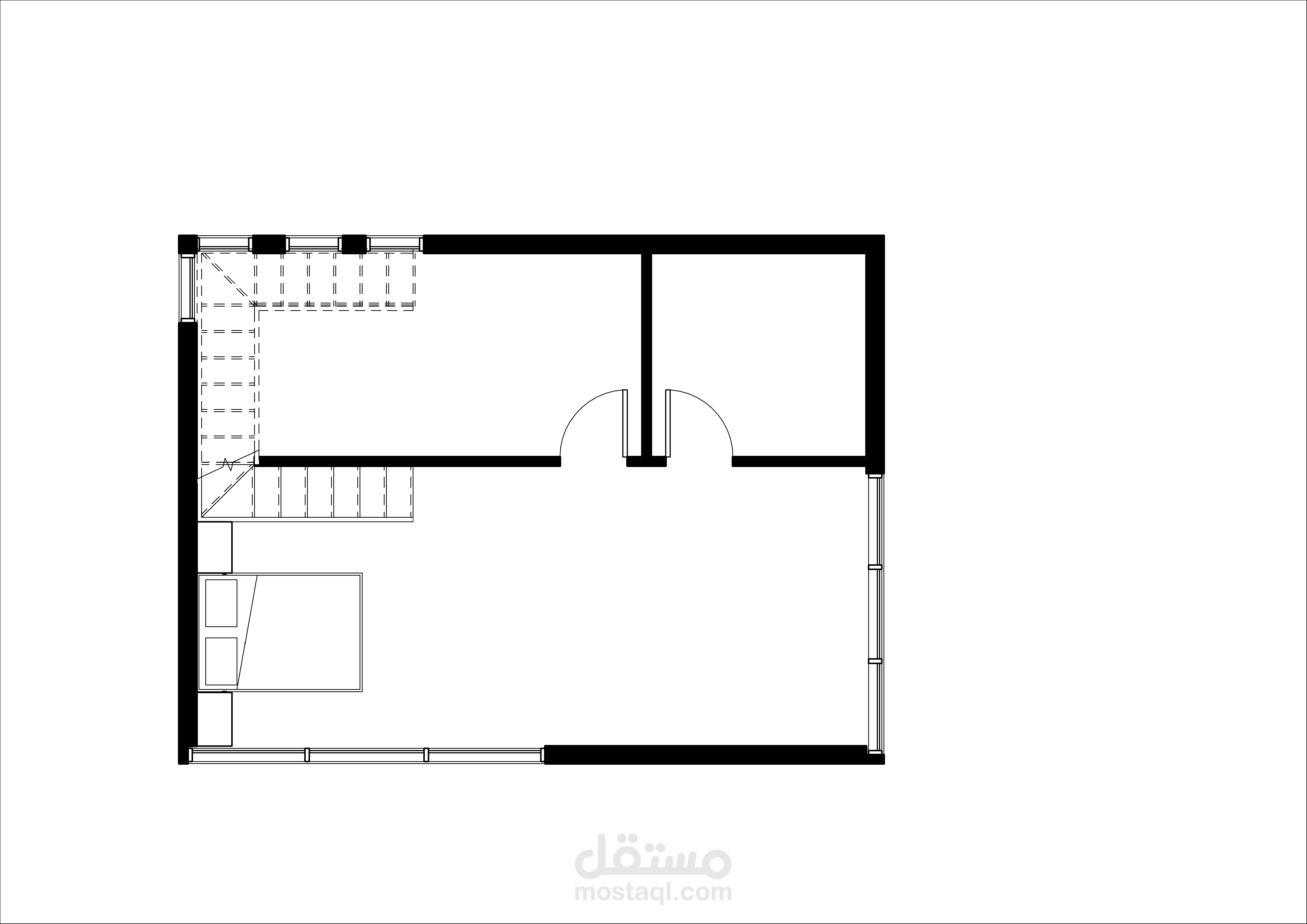
شاليه على نمط de style
تفاصيل العمل
تصميم شاليه صغير على نمط de style
تصميم تخيلي للتدريب على الرفع ثلاثي الابعاد والرندرة
بطاقة العمل
اسم المستقل
Ahmad E.
عدد الإعجابات
0
عدد المشاهدات
34
تاريخ الإضافة
23/08/2023
تاريخ الإنجاز
12/07/2023
المهارات
تصميم 3D
ريفيت
الفكرة التصميمية
تصميم داخلي
فوتوشوب
أوتوكاد
تصميم منزل
فيراي
تصميم معماري
هندسة معمارية
تصميم ديكور
×