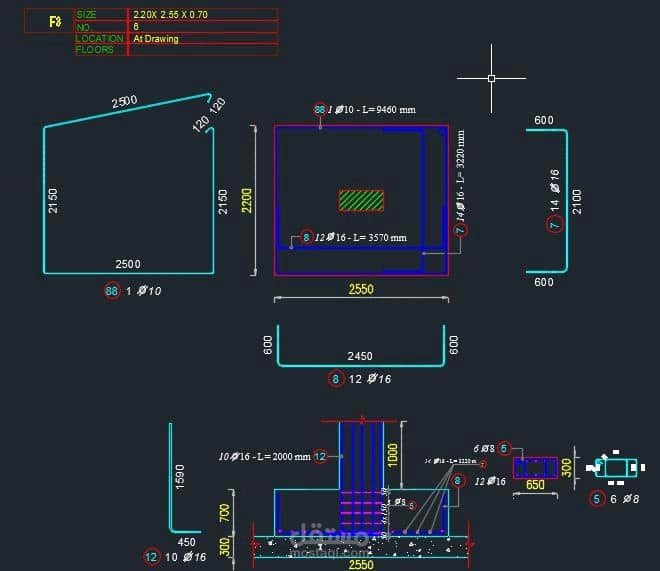
تفاصيل العمل

اعداد الرسومات التنفيذية التشغيلية للعنصر سواء كان قاعدة او عمود او كمرة او بلاطة

باستخدام ASD

اعداد التقطيعات والتفريدات الممكنه طبقا لاشتراطات المصمم واشترطات كود التفاصيل الانشائية

اعداد جداول الBBS

بطاقة العمل

اسم المستقل
عدد الإعجابات
0
عدد المشاهدات
221
تاريخ الإضافة
تاريخ الإنجاز
المهارات