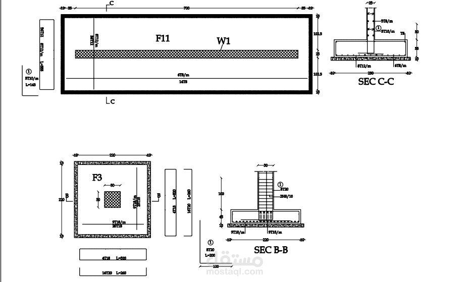
النظام الإنشائي للمبنى الإداري, عبارة عن جملة جدران قصيّة (لمقاومة الزلازل) , مع جملة إطارية , من كمرات وأعمدة بالاضافة للجدران لمقاومة الاحمال الشاقولية, ونظام السقف عبارة عن بلاطات هوردي (أعصاب تعمل باتجاه أو اتجاهين),
والصور التالية توضّح تفاصيل تنفيذية مهمّة.