تفاصيل العمل

$$ تصميم معماري / فيلا ( ارضي - أول - بنت هاوس - سور خارجي ) : -

..................................................................................................................................

خدمة التصميم المعماري وتقديم الرسومات المعمارية كالأتي /

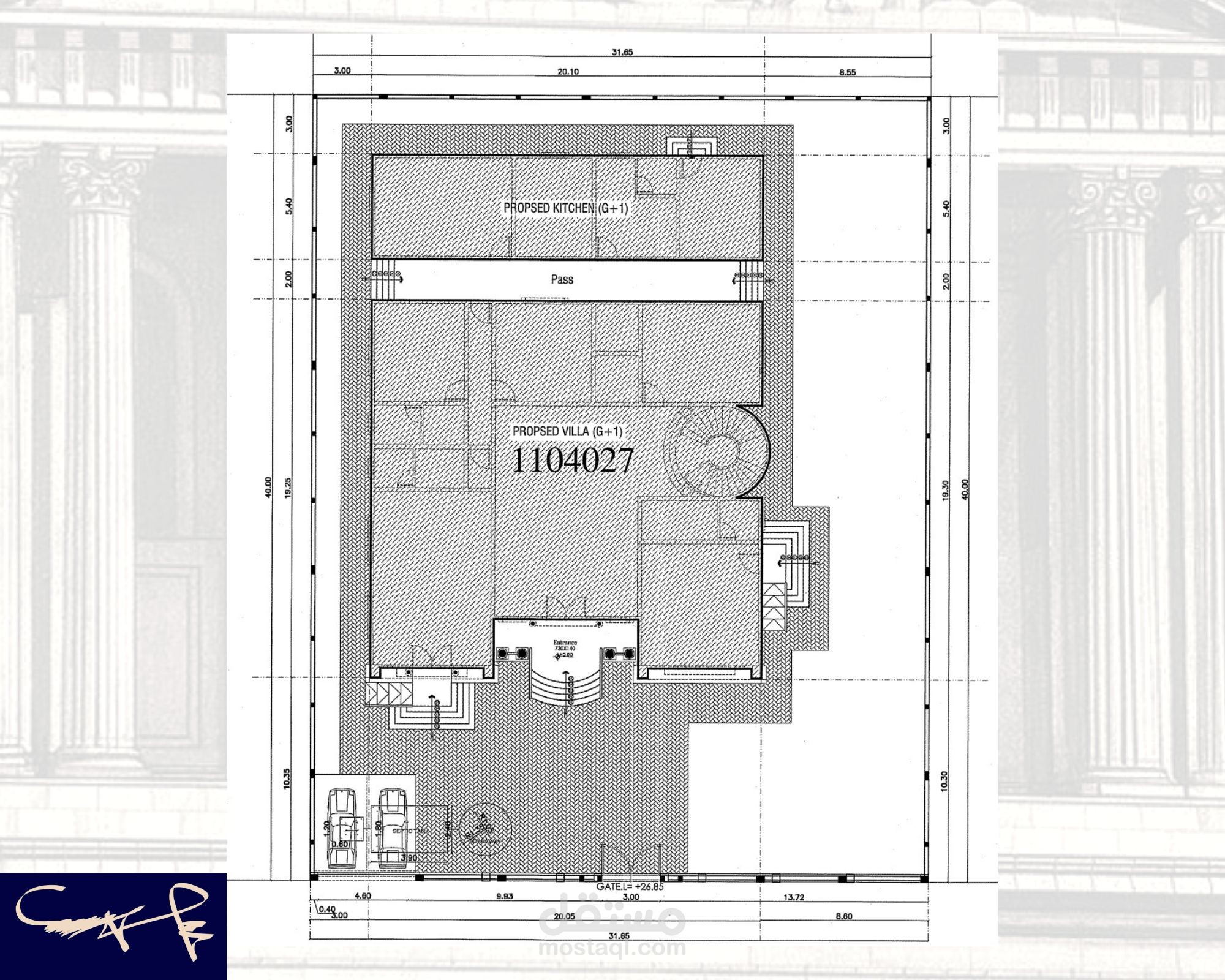
- لوحات الموقع العام & لاند سكيب

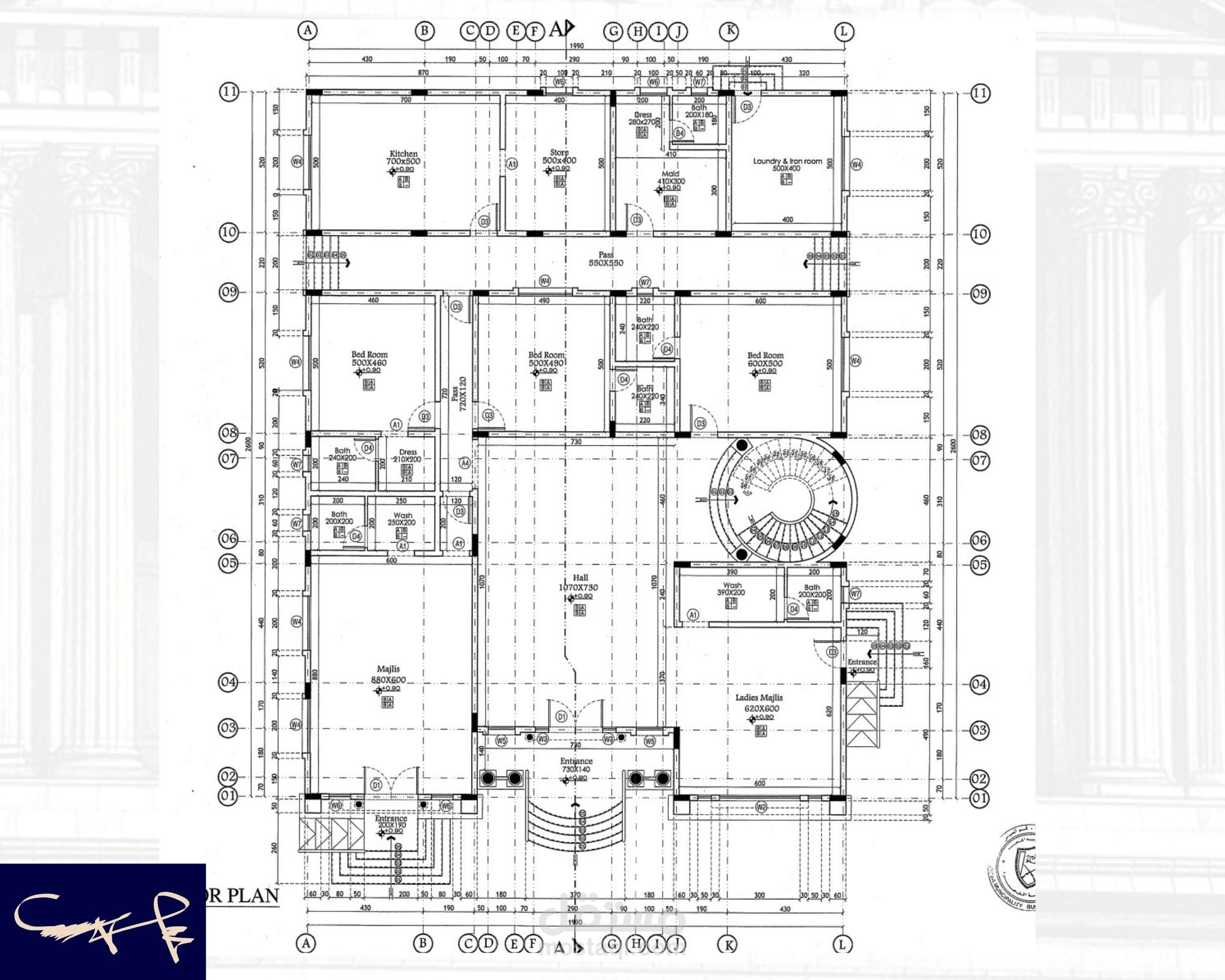
- لوحات توزيع الدور الارضي

- لوحات توزيع الدور المتكرر والروف .

- لوحات الواجهات 2D

- لوحات الواجهة الخارجية 3D

- لوحات القطاعات الداخلية مع التفاصيل للديكور الخارجي .

- لوحات الصرف الصحي .

- لوحات التفاصيل على ثبيل المثال وليس الحصر ( الدرج - المسبح - البنية التحتية - المصعد - ...)

- لوحات توزيع الكهرباء والاتصالات والمياة والكاميرات وأنظمة الحرائق .