الرئيسية
المستقلين
Mohamed S.
معرض الأعمال
اطلب عمل مماثل
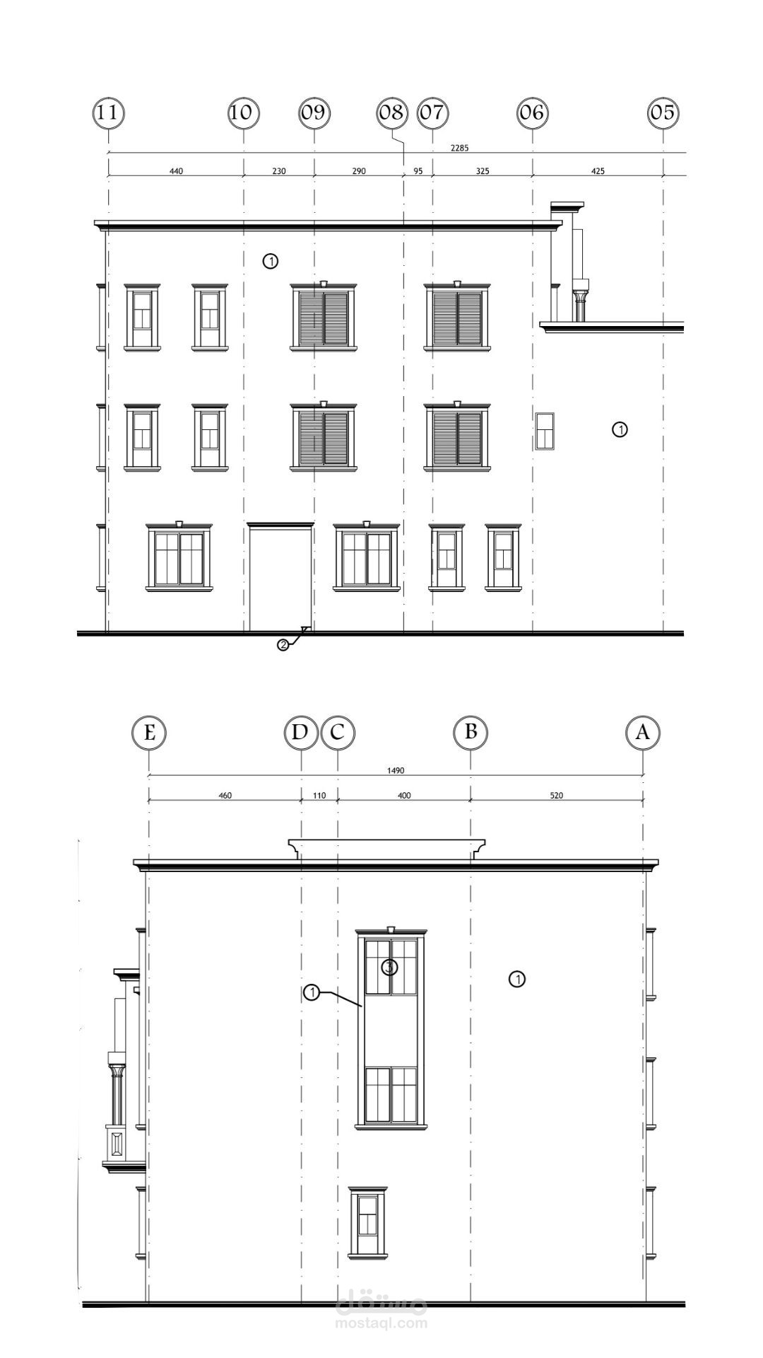
ISLAMIC VILLA
تفاصيل العمل
رسم هندسي معماري لمخطط فيلا أرضي + أول + ثاني على الطراز الإسلامي ...
بطاقة العمل
اسم المستقل
Mohamed S.
عدد الإعجابات
0
عدد المشاهدات
48
تاريخ الإضافة
06/08/2023
المهارات
البناء المعماري
الفكرة التصميمية
التصميم الإبداعي
الرسم التوضيحي
فوتوشوب
×