الرئيسية
المستقلين
Asmaa M.
معرض الأعمال
مبنى سكني تجاري
معرض الأعمال
اطلب عمل مماثل
تفاصيل العمل
مبنى سكني تجاري
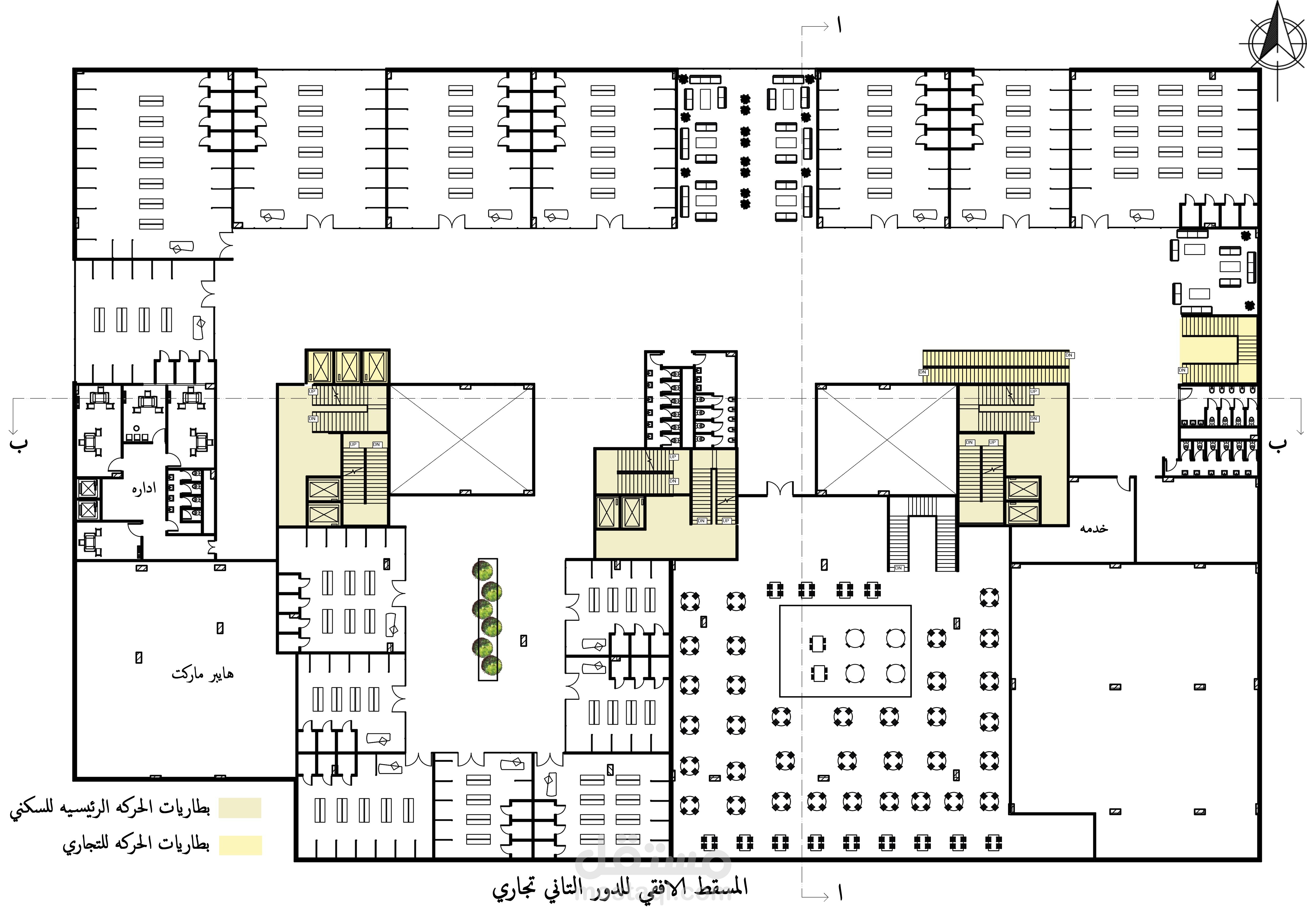
المبنى على مساحه 5400 م2 مكون من 2 دور تجاري , 12 دور سكني
بطاقة العمل
اسم المستقل
Asmaa M.
عدد الإعجابات
0
عدد المشاهدات
35
تاريخ الإضافة
02/08/2023
المهارات
تصميم 3D
تعديل الصور
فوتوشوب
أوتوكاد
×