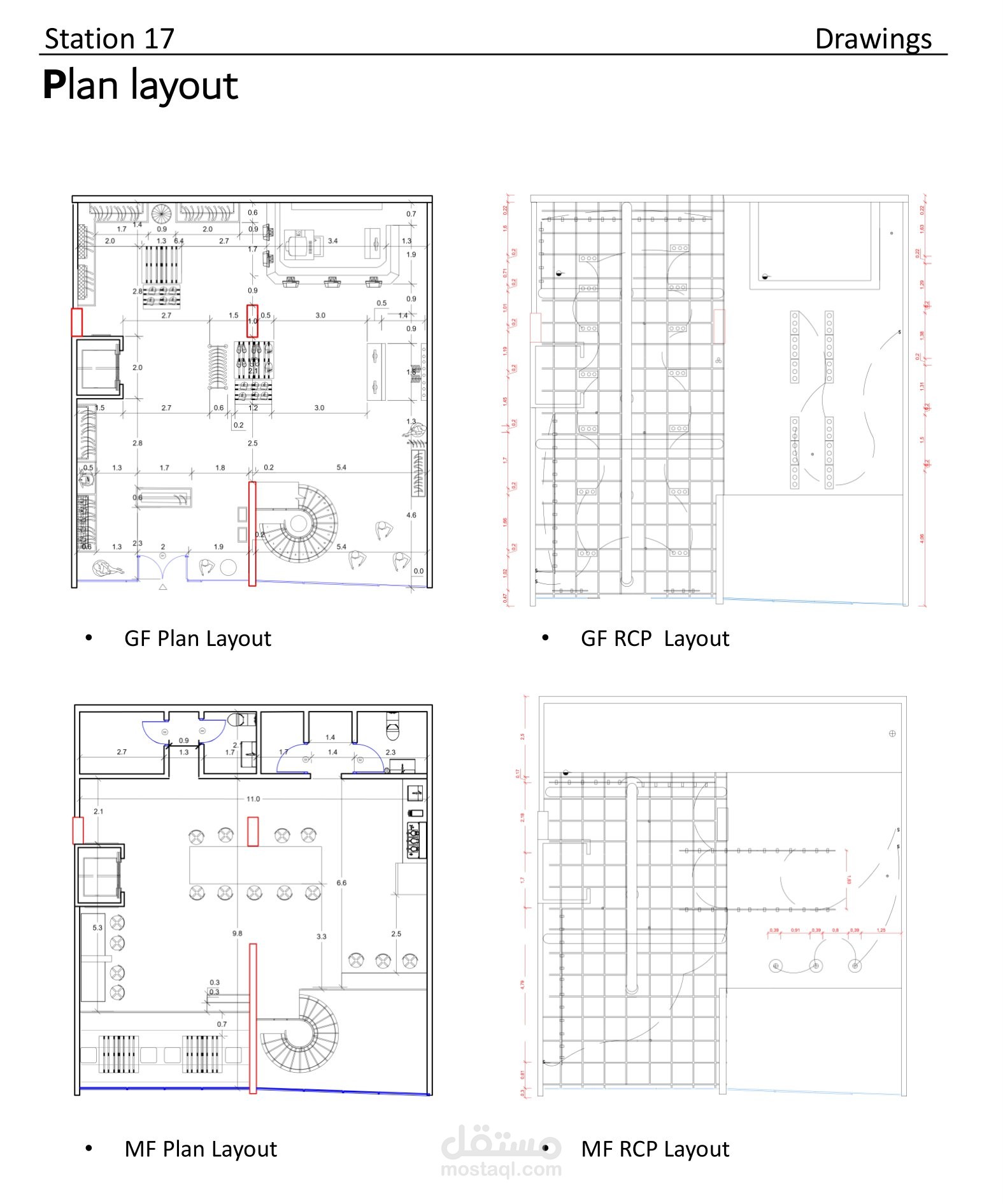
تفاصيل العمل

محطة 17 هو متجر أزياء عصري في جدة ، بدأ في عام 2017.

في المحطة 17 نقدم ملابس غير رسمية للمستخدم العصري: سترات الدنيم ،

تيشيرتات وسترات وقبعات والمزيد!

كما تتوفر خدمات طباعة الأقمشة في المتجر و يمكن تصميم الستايل الخاص بك

بطاقة العمل

اسم المستقل
عدد الإعجابات
0
عدد المشاهدات
24
تاريخ الإضافة