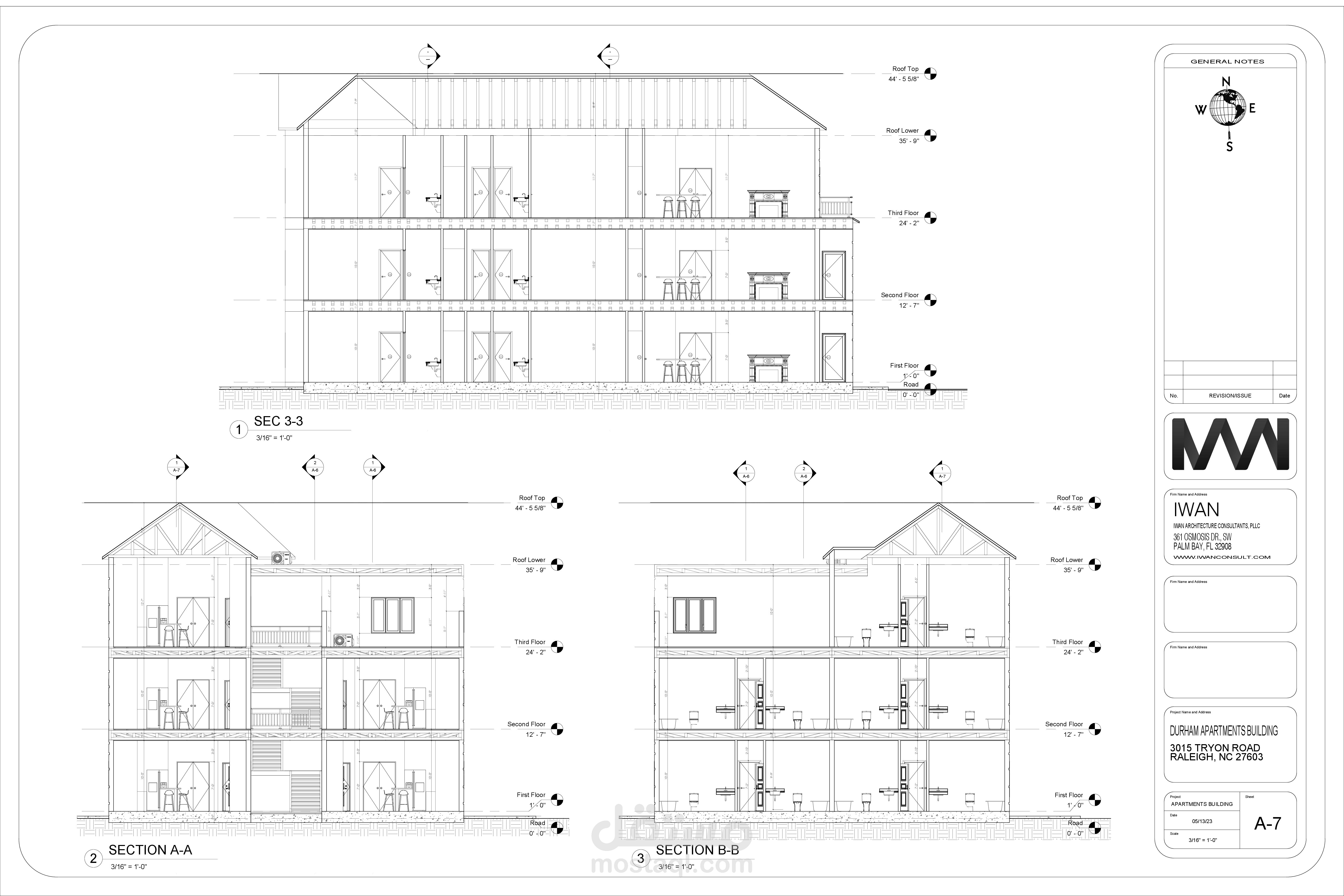
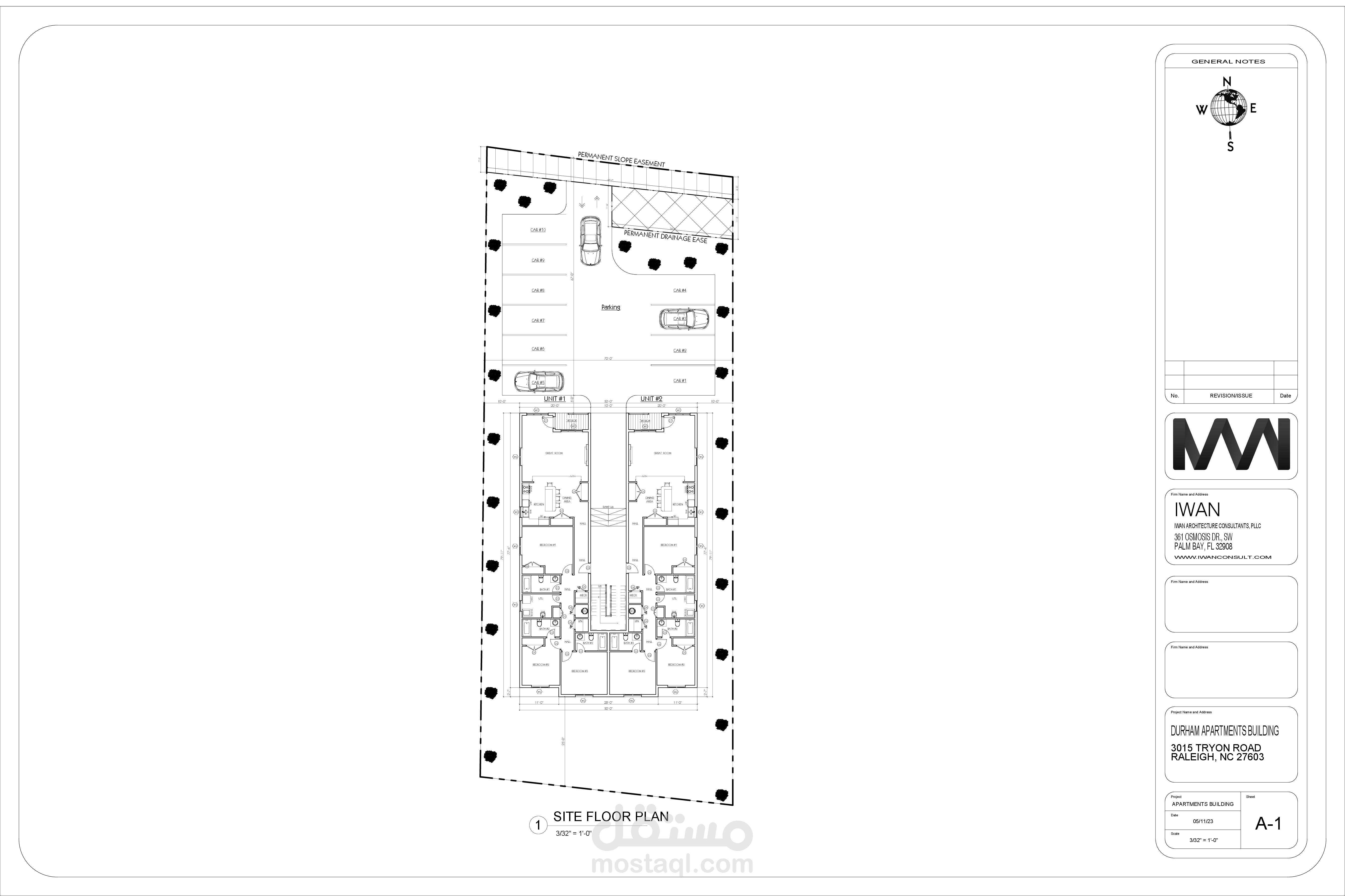
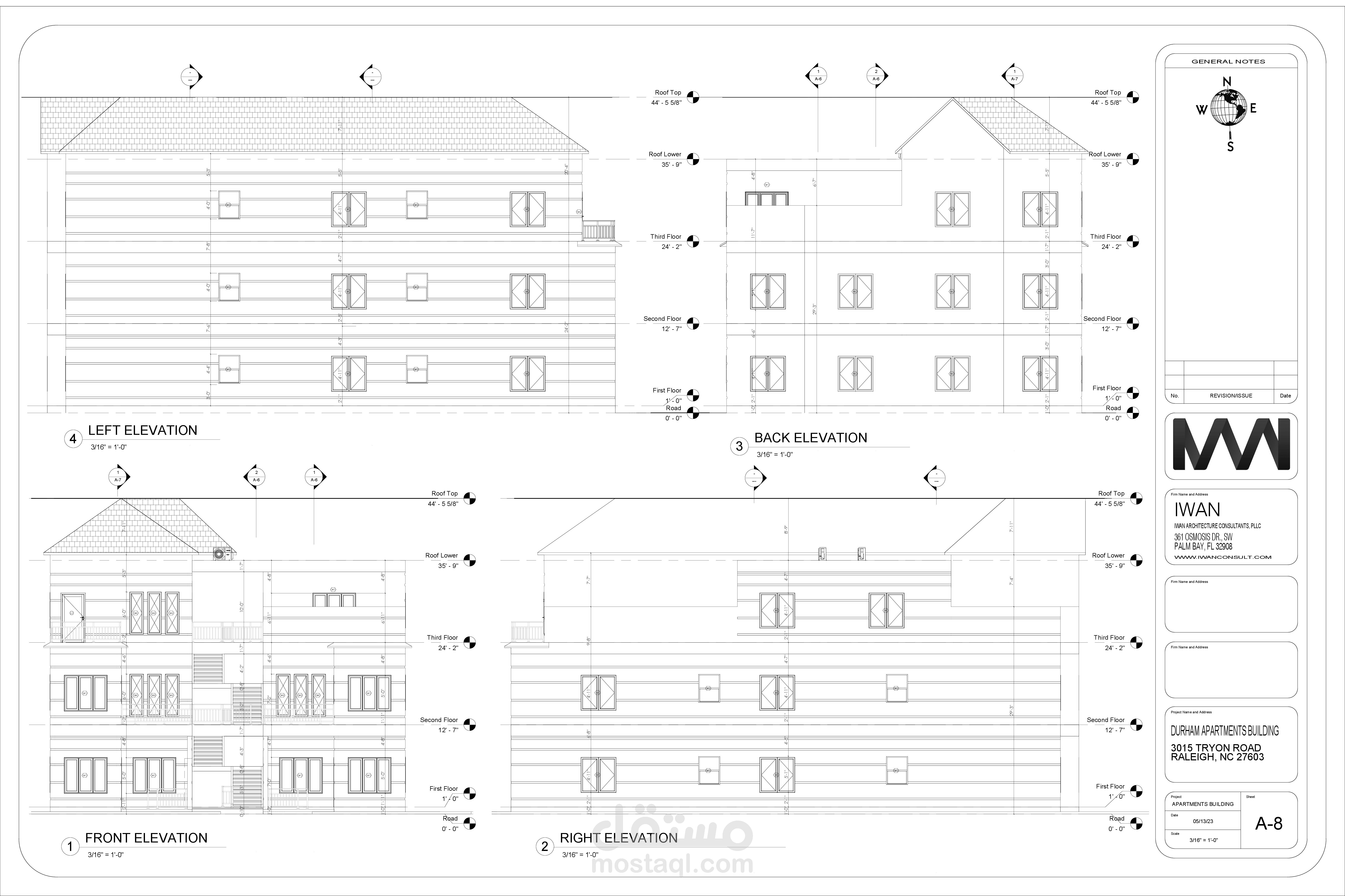
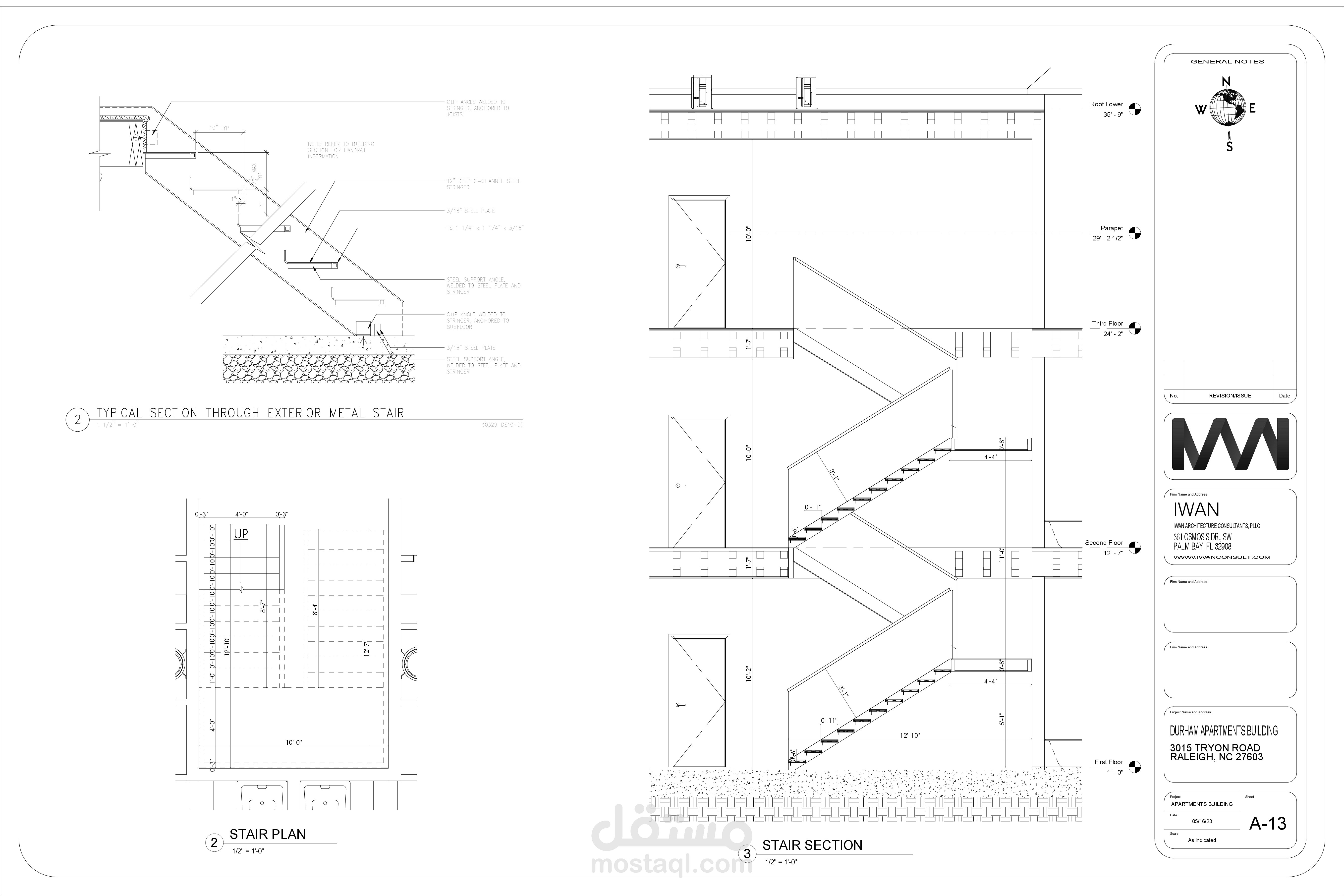
تفاصيل العمل

مخططات معمارية لمبني سكن طلاب بنظام بناء أمريكي من الخشب

استخدام الريفيت المعماري في التصميم والتفاصيل والاخراج

الابعاد بالبوصه ووفقا للاشتراطات البنائية في منطقة البناء

بطاقة العمل

اسم المستقل
عدد الإعجابات
0
عدد المشاهدات
20
تاريخ الإضافة
تاريخ الإنجاز
المهارات