الرئيسية
المستقلين
عبد الرحمن ا.
معرض الأعمال
اطلب عمل مماثل
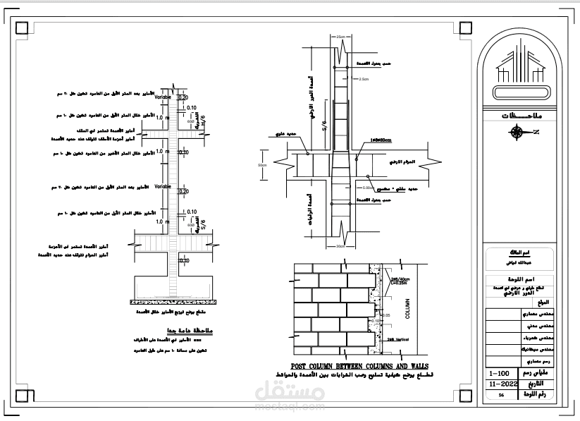
مخطط إنشائي
تفاصيل العمل
مخطط إنشائي
بعض المقتطفات لمخطط إنشائي كامل
بطاقة العمل
اسم المستقل
عبد الرحمن ا.
عدد الإعجابات
0
عدد المشاهدات
96
تاريخ الإضافة
17/06/2023
تاريخ الإنجاز
09/06/2023
المهارات
تصميم 3D
البناء المعماري
تصميم داخلي
أوتوكاد
الهندسة الكهربائية
تصميم معماري
هندسة معمارية
تصميم ديكور
هندسة مدنية
تصميم إنشائي
إظهار معماري
تخطيط حضري
تصميم مخططات معمارية
×