تفاصيل العمل

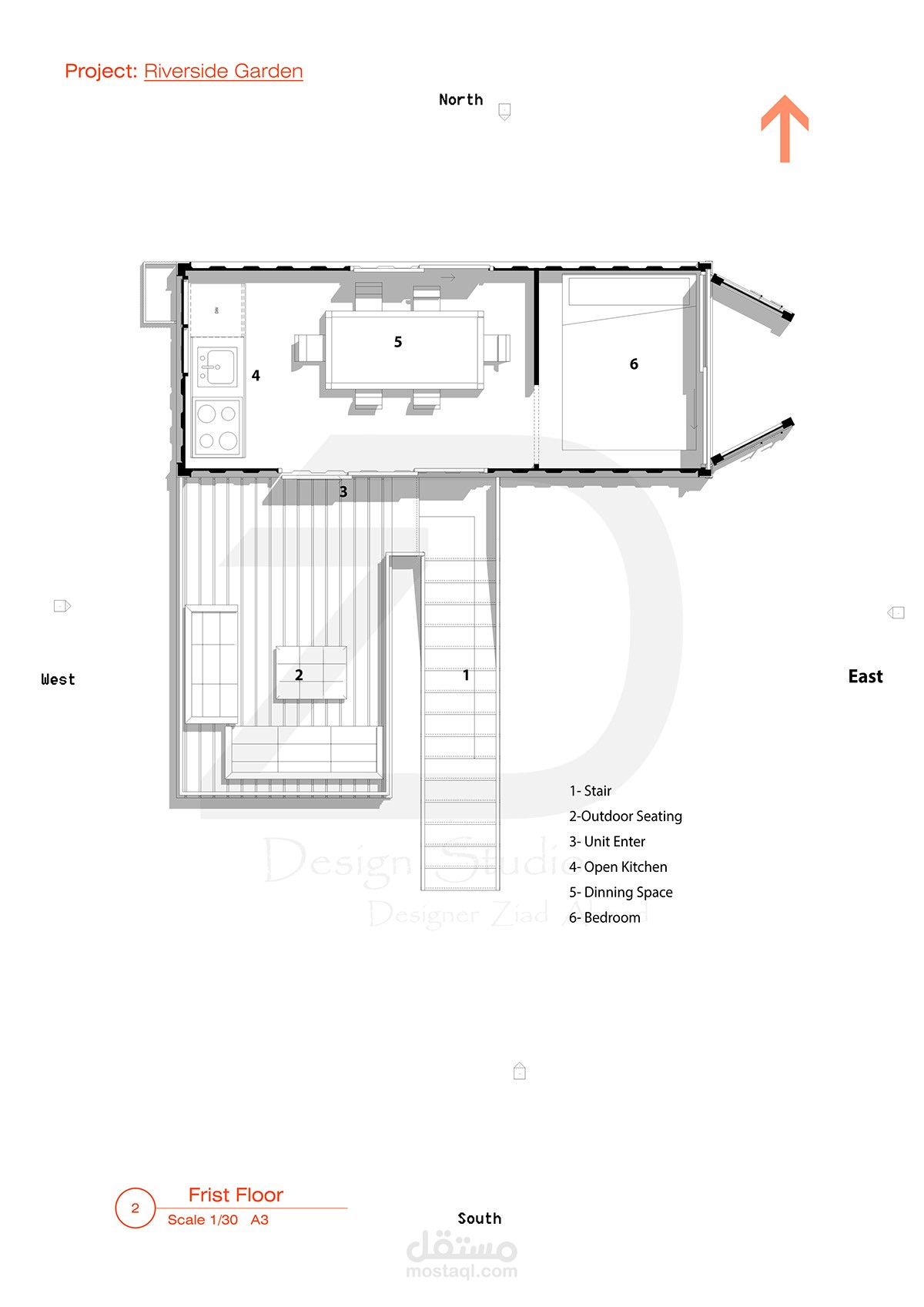
Container Unit: Riverside Garden

- Built from two unit 20 Feet.

- Modelling and imagine plans drawings by:

Z I A D A H M E D ™ design

Z D D E S I G N S T U D I O ©

بطاقة العمل

اسم المستقل
عدد الإعجابات
0
عدد المشاهدات
32
تاريخ الإضافة