الرئيسية
المستقلين
رانيا ع.
معرض الأعمال
اطلب عمل مماثل
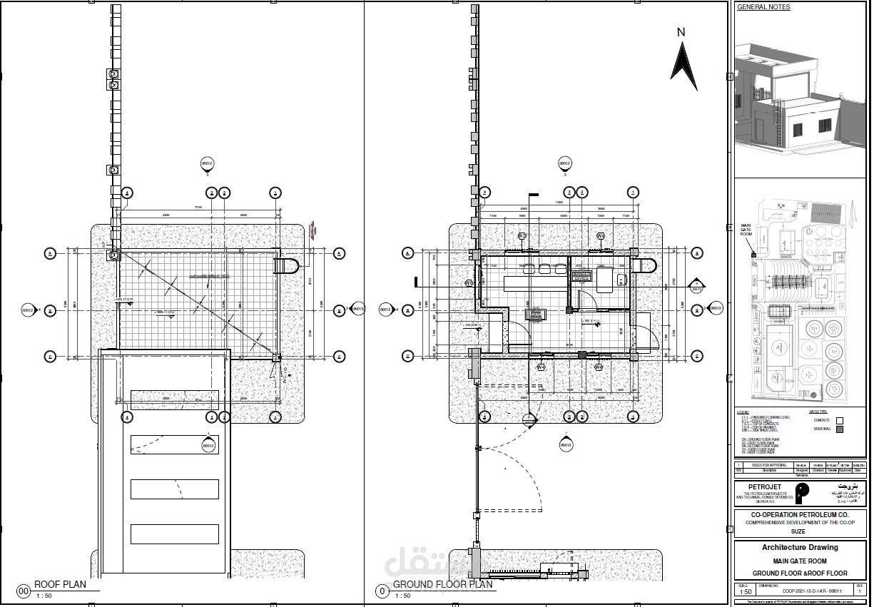
Main Gate Room
تفاصيل العمل
بوابة لشركة التعاون في السويس بجمهورية مصر العربية
بطاقة العمل
اسم المستقل
رانيا ع.
عدد الإعجابات
0
عدد المشاهدات
32
تاريخ الإضافة
28/05/2023
×