تفاصيل العمل

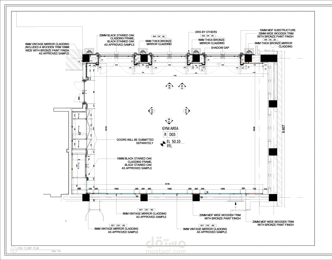
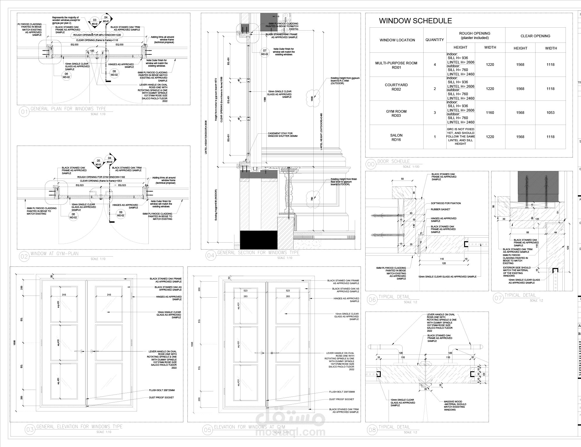
الرسومات التنفيذيه للجيم و الصالون و الحمامات جميع الاعمال الخشبيه من التجاليد و الوحدات الخشبيه و الابواب

ملفات مرفقة

بطاقة العمل

اسم المستقل
عدد الإعجابات
0
عدد المشاهدات
143
تاريخ الإضافة
المهارات