تفاصيل العمل

احدي المشاريع الشوب درونج كميات حديد التسليح

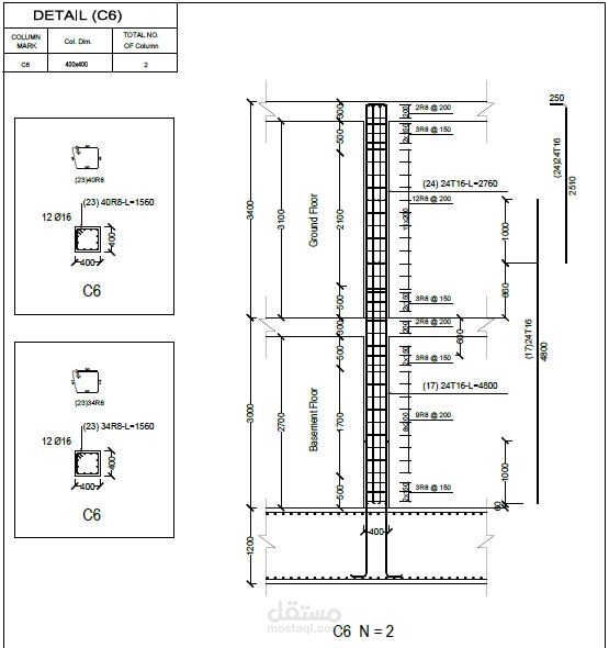
يحتوي المشروع علي نماذج من ممايلي

1-شوب درونج وحصر كميات حديد لبعض الاعمدة من المشروع

2-شوب درونج وحصر كميات حديد لبعض الكمرات

3-شوب درونج وحصر كميات حديد لسقف البدروم للمشروع

بطاقة العمل

اسم المستقل
عدد الإعجابات
0
عدد المشاهدات
24
تاريخ الإضافة
تاريخ الإنجاز
المهارات