تفاصيل العمل

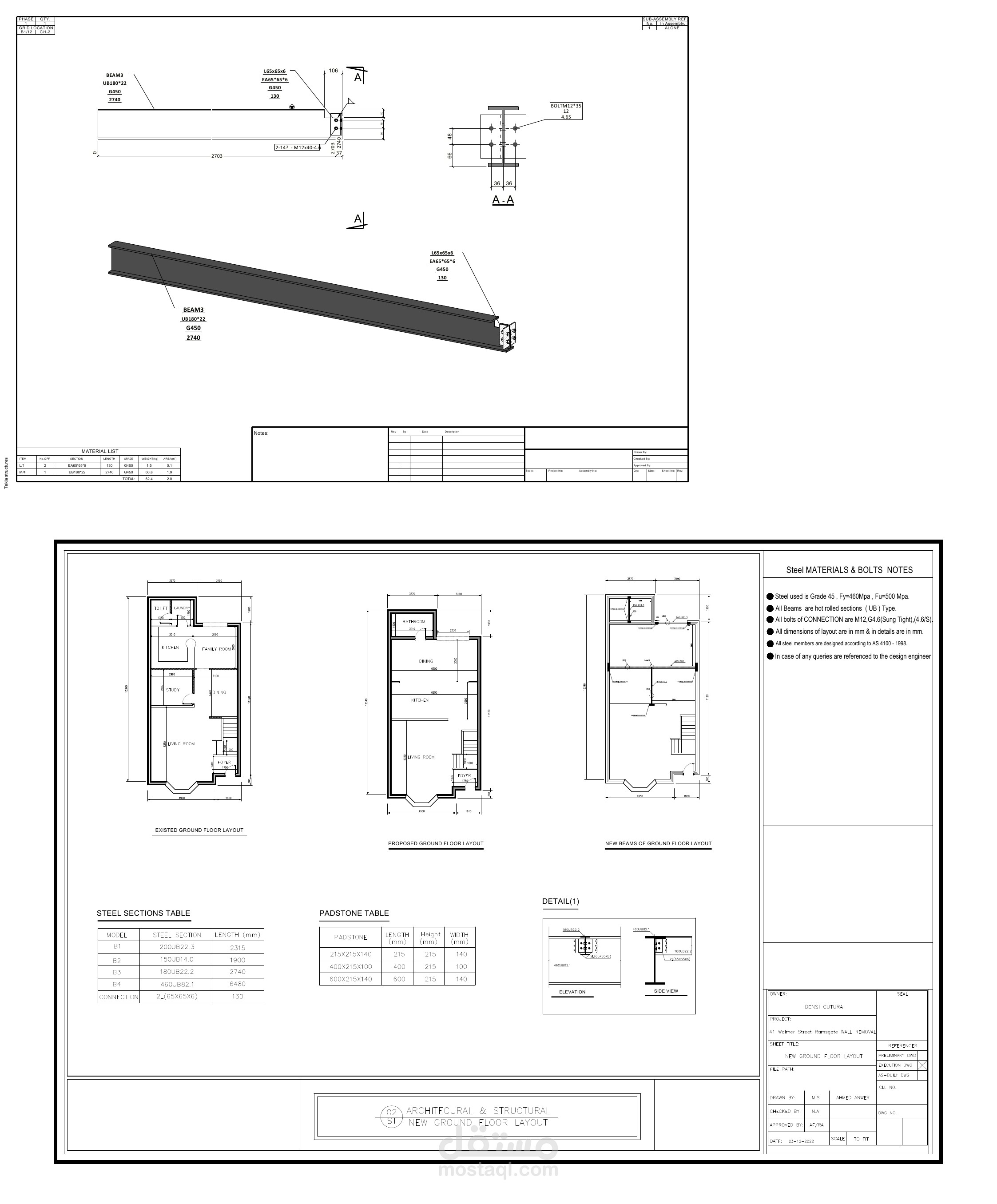
The project consists of removing 3 internal walls and replacing them with suitable

Steel profiles, achieving structural efficiency.

Code Of Design :-

AS 3700 – 2011 Australia Standards

AS 4100 –1998 Australia Standards

بطاقة العمل

اسم المستقل
عدد الإعجابات
0
عدد المشاهدات
44
تاريخ الإضافة
تاريخ الإنجاز
المهارات